Omschrijving
Direct een bezichtiging inplannen? Dat kan 24/7 via onze eigen website.
Een licht en goed ingedeeld appartement met vrij uitzicht – perfect voor starters!
Welkom aan de Toermalijnlaan in de populaire wijk Tolsteeg, aan de zuidkant van Utrecht. Hier woon je in een groene, rustige omgeving met parken en plantsoenen om de hoek, terwijl je binnen no-time in de levendige stad bent. Extra bijzonder: dit appartementencomplex is het enige in de omgeving met eigen parkeerplaatsen én door de lage bebouwing rondom geniet je van een heerlijk vrij en ver uitzicht.
De ligging is ideaal. Voor je dagelijkse boodschappen loop of fiets je zo naar Winkelcentrum Smaragdplein. Zin in een hapje of drankje? Binnen enkele minuten sta je in het gezellige Rotsoord of op het Ledig Erf. Ook qua bereikbaarheid zit je hier perfect: de A12 en A27 zijn snel te bereiken, station Utrecht Vaartsche Rijn ligt op loopafstand en de bus stopt praktisch om de hoek.
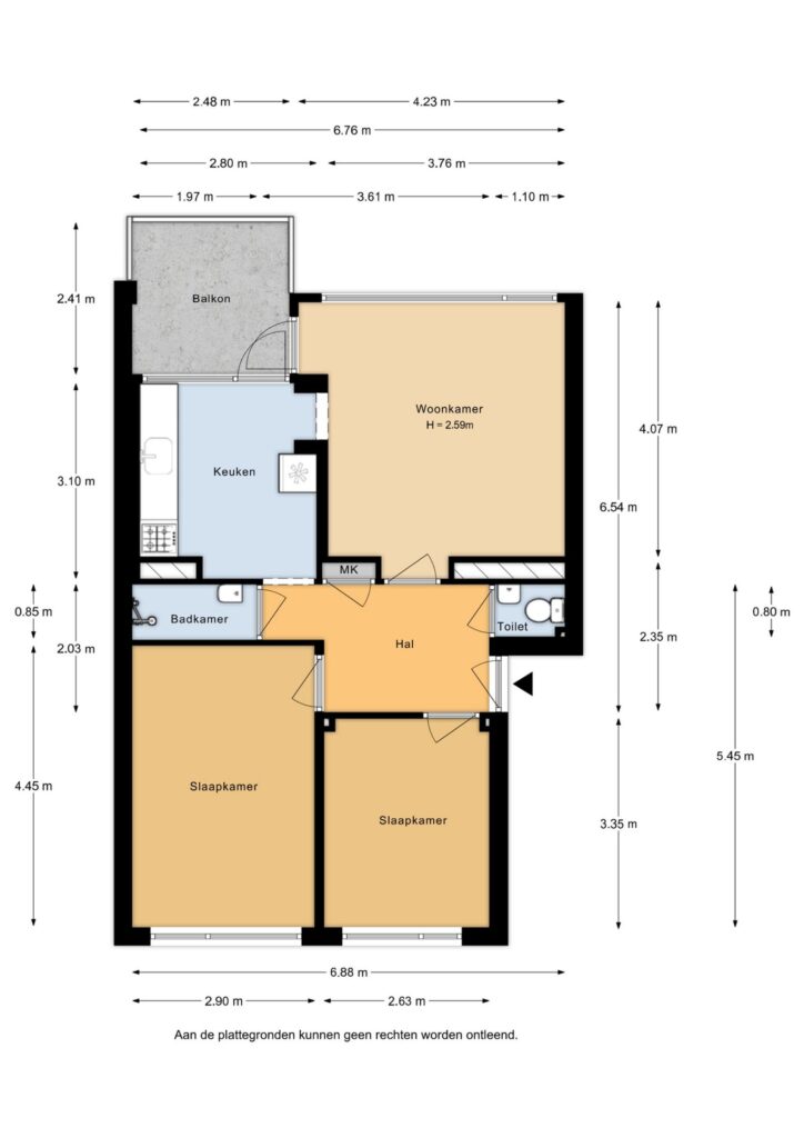
INDELING
Begane grond:
Verzorgde, gemeenschappelijke entree met brievenbussen en toegang tot het trappenhuis en de bergingen.
Vierde verdieping:
Bij binnenkomst kom je in een ruime hal die toegang biedt tot alle vertrekken. De lichte woonkamer valt direct op door het vrije uitzicht en de prettige indeling, met voldoende ruimte voor zowel een comfortabele zithoek als een eethoek.
De keuken sluit mooi aan op de woonkamer en is voorzien van een gasfornuis, afzuigkap, vaatwasser en een aansluiting voor de wasmachine. Daarnaast is er een losse koelkast met vriezer aanwezig en bevindt de cv-opstelling zich netjes in een kast in de keuken.
Vanuit zowel de woonkamer als de keuken heb je toegang tot het balkon. Dankzij de fijne diepte is dit een heerlijke plek om buiten te zitten, met een groen en vrij uitzicht richting het Beatrixpark.
Het appartement beschikt over twee ruime slaapkamers, een nette badkamer met douche en wastafel, en een separaat toilet met fonteintje.
In de onderbouw bevindt zich bovendien een praktische berging.
Kortom, dit fijne appartement op een toplocatie is echt een buitenkans voor starters!
Bijzonderheden:
– Woonoppervlakte circa 58m²
– Energielabel C
– Bouwjaar 1959
– Ruim balkon op het westen met vrij uitzicht
– Eigen berging in de onderbouw
– Actieve en gezonde VvE: servicekosten €125,- per maand
– Gemeenschappelijke parkeerplaatsen achter het gebouw (in gebruik bij meerdere VvE’s)
– Uitstekende ligging met bushalte om de hoek en station Vaartsche Rijn op circa 10 minuten lopen
– Oplevering in overleg
Kom je graag een kijkje nemen? Maak dan snel een afspraak met je (NVM) makelaar of plan een bezichtiging in via onze website!
Kenmerken
- Status Onder bod
- Prijs € 365.000 k.k.
- Type woning Appartement
- Woonoppervlakte 58 m²
- Aantal kamers 3
- Inhoud 190 m³
- Bouwjaar 1959
- Energielabel C
- Aanvaarding In overleg
- Ligging Aan rustige weg
De woning in beeld
Plattegronden
In de buurt
Woningen in beeld
Deel deze pagina
Plan je bezichtiging
Vul je gegevens in en we nemen snel contact met je op.
Contact opnemen
Stuur ons een berichtje. We helpen je graag!
Cookies
Kies welke cookies we mogen gebruiken.
365makelaardij gebruikt cookies. Zie de cookieinstellingen voor meer informatie.
Lees policy
