Omschrijving
Direct een bezichtiging inplannen? Dat kan 24/7 via onze eigen website!
Op zoek naar een woning waar ruimte, licht en comfort samenkomen? Deze royale geschakelde woning in de groene en ruim opgezette wijk Veldhuizen in De Meern biedt verrassend veel leefruimte, een zonnige tuin, vier slaapkamers en een rustige ligging. Met een eigen oprit en een nette afwerking is dit een huis waar je je direct thuis voelt.
Binnen valt meteen de fijne sfeer op. Grote raampartijen en een brede schuifpui zorgen voor een prachtige lichtinval en een mooie verbinding met de tuin. De indeling is praktisch en flexibel. Of je nu een gezin hebt, thuiswerkt of gewoon graag ruim woont, hier kan het allemaal.
De wijk Veldhuizen staat bekend om haar groene karakter, brede straten en prettige woonomgeving. Alle dagelijkse voorzieningen zoals winkels, scholen, kinderopvang en sportfaciliteiten liggen op korte afstand. Ook de bereikbaarheid is uitstekend, met snelle verbindingen naar de A2 en A12 en een bushalte om de hoek.
Wat deze locatie extra aantrekkelijk maakt, is de combinatie van rust en levendigheid. Op korte afstand liggen het Veldhuizerpark en het Maximapark, ideaal voor wandelen, sporten of ontspannen in het groen. Met de fiets bereik je bovendien eenvoudig het oude dorp, winkelcentrum Vleuterweide en de polders van het Groene Hart.
INDELING
Begane grond:
Via de entree kom je in een ruime hal met garderobe, toiletruimte en meterkast. De tussendeur met glazen doorkijk geeft alvast een mooi zicht op de living. De woonkamer is royaal, licht en tuingericht. Grote raampartijen en een brede schuifpui zorgen voor een fijne lichtinval en een directe verbinding met de achtertuin. Doordat de woonkamer aan de achterzijde is gelegen, geniet je hier bovendien van veel privacy en een rustige, groene beleving.
Aan de voorzijde bevindt zich de keuken, uitgevoerd met een kookeiland waaraan je gezellig kunt zitten. Een prettige plek waar koken en samenzijn samenkomen. De keuken is voorzien van een 5-pits gasfornuis met wokbrander, afzuigkap, combi-oven/magnetron, koelkast en vaatwasser, met daarnaast volop kastruimte.
Grenzend aan de woonkamer ligt een afgescheiden werkruimte, die dankzij de open doorgangen toch mooi in verbinding staat met het geheel. Deze ruimte is veelzijdig inzetbaar als thuiswerkplek, hobbyruimte, speelkamer of extra zitkamer. Vanuit hier is er toegang tot de tuin én tot de berging.
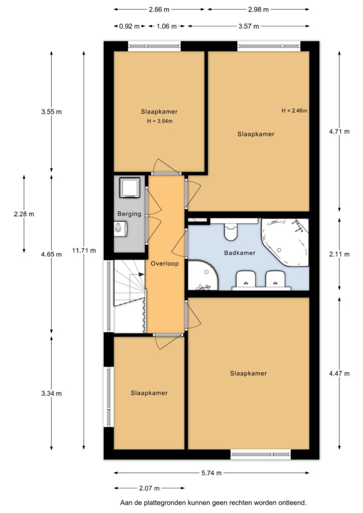
Eerste verdieping:
De overloop geeft toegang tot vier slaapkamers, waarvan één momenteel in gebruik is als inloopkast. Alle kamers zijn prettig licht en goed van formaat. De master bedroom is voorzien van airconditioning voor extra comfort.
De badkamer is ruim en compleet, met een ligbad, douchecabine, dubbele wastafel en toilet. Daarnaast is er een praktische berging met aansluitingen voor wasmachine en droger en de cv-installatie.
Tuin:
De achtertuin, gelegen op het (zuid)oosten, is een diepe, groene en fraai aangelegde buitenruimte waar rust en sfeer samenkomen. Centraal ligt een prachtige vijver, stijlvol verbonden met een moderne houten loopbrug, wat de tuin een uniek en speels karakter geeft. Verspreid over de tuin bevinden zich meerdere terrassen, uitgevoerd in een combinatie van hout en tegels, waardoor er altijd een perfecte plek is om te genieten – in de zon of juist in de schaduw. De voortuin is grotendeels bestraat en biedt ruim plaats voor het parkeren van meerdere auto’s op eigen terrein.
Bijzonderheden:
• Royale geschakelde woning
• Woonoppervlakte circa 151 m²
• Energielabel A
• Diepe, fraai aangelegde zonnige tuin
• Grote raampartijen en veel lichtinval
• Moderne leefkeuken met kookeiland
• Maar liefst vier slaapkamers
• Airconditioning in de master bedroom
• Eigen oprit met ruimte voor meerdere auto’s
• Gunstige ligging nabij voorzieningen, scholen en uitvalswegen
• Oplevering in overleg
Nieuwsgierig geworden? Plan snel een bezichtiging en laat je verrassen door deze prachtige woning!
Kenmerken
- Status Beschikbaar
- Prijs € 735.000 k.k.
- Type woning Eengezinswoning
- Woonoppervlakte 151 m²
- Aantal kamers 5
- Inhoud 533 m³
- Perceeloppervlakte 294 m²
- Bouwjaar 1999
- Energielabel A
- Aanvaarding In overleg
- Ligging Aan rustige weg, In woonwijk
De woning in beeld
Plattegronden
In de buurt
Woningen in beeld
Deel deze pagina
Plan je bezichtiging
Vul je gegevens in en we nemen snel contact met je op.
Contact opnemen
Stuur ons een berichtje. We helpen je graag!
Cookies
Kies welke cookies we mogen gebruiken.
365makelaardij gebruikt cookies. Zie de cookieinstellingen voor meer informatie.
Lees policy
