Omschrijving
Direct een bezichtiging inplannen? Dat kan 24/7 via onze eigen website.
Wonen met karakter én comfort in de geliefde Rivierenwijk!
Altijd al willen wonen in de charmante sfeer van de oude stadswijk Rivierenwijk, maar met het comfort van een moderne woning? Dan is dit jouw kans! Deze sfeervolle stadswoning met energielabel A++ combineert het beste van twee werelden. De woning is gebouwd in 2009 en is met veel oog voor detail ontworpen met karakteristieke jaren ’30 stijlelementen, waardoor hij perfect past in het straatbeeld van deze levendige buurt.
Met een woonoppervlakte van ca. 125 m² en maar liefst 5 kamers biedt deze woning verrassend veel ruimte. De woning ligt bovendien aan een rustig, afgesloten binnenhof met parkeerplaatsen, waardoor je geniet van zowel levendigheid als rust.
De ligging is ideaal: winkels, basisscholen en kinderopvang zijn dichtbij en binnen 5 minuten fietsen sta je al in het historische centrum van Utrecht. Ook het gezellige Rotsoord, met diverse restaurants en cafés, ligt op loopafstand. De woning is goed bereikbaar met zowel openbaar vervoer (NS station Vaartse Rijn ligt op een paar minuten loopafstand) als de auto, en parkeren kan met een vergunning voor de deur of op het afgesloten parkeerterrein.
INDELING
Begane grond:
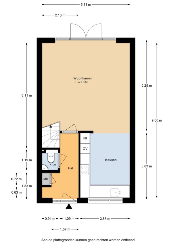
Via de hal met meterkast, toiletruimte en trapopgang kom je in de lichte, tuingerichte woonkamer. Dankzij de grote glazen pui met dubbele openslaande deuren naar de tuin voelt de ruimte heerlijk licht en ruim aan. Hier is volop plek voor een comfortabele zithoek én een gezellige eethoek.
De woonkamer staat in open verbinding met de keuken, wat zorgt voor een prettige, open leefruimte. De keuken is uitgevoerd in een praktische hoekopstelling en voorzien van diverse inbouwapparatuur en voldoende kastruimte.
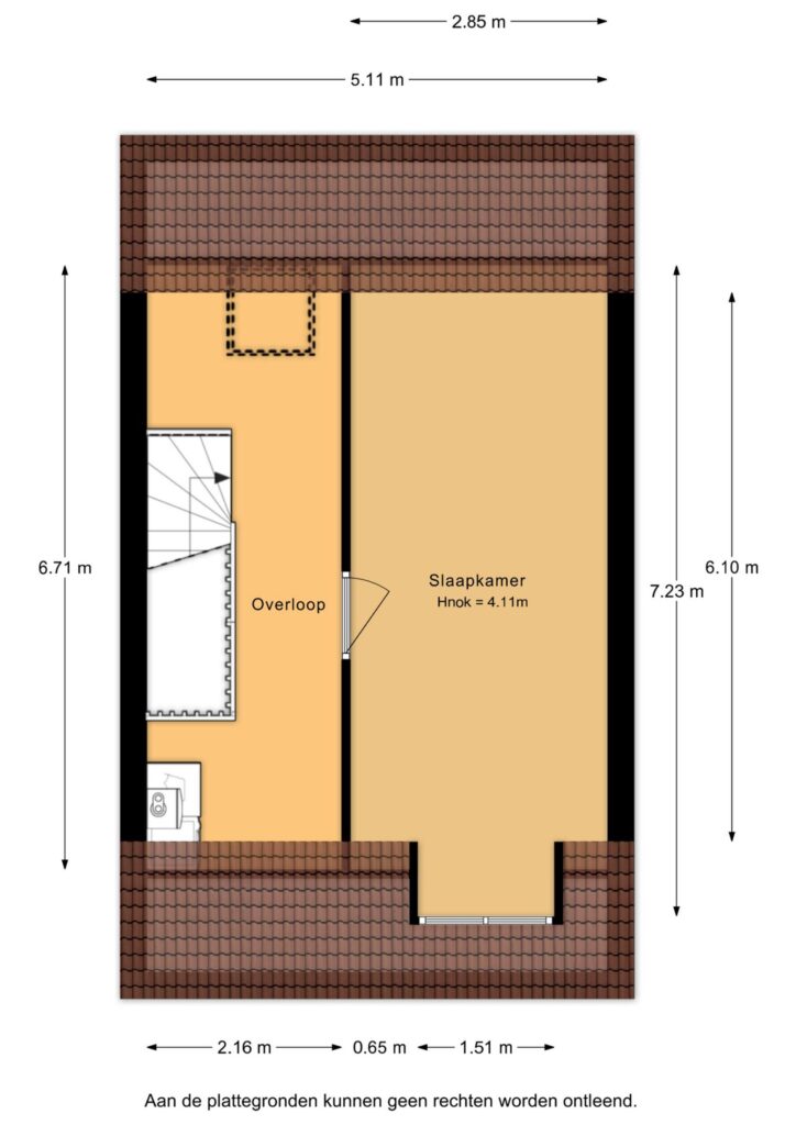
Eerste verdieping:
De overloop geeft toegang tot drie ruime slaapkamers en de badkamer. Alle slaapkamers zijn goed van formaat en flexibel in te richten, bijvoorbeeld als werk-, kinder- of logeerkamer.
De badkamer is modern afgewerkt met witte wandtegels en een donkere vloertegel en beschikt over een douche, wastafel en een tweede toilet. Daarnaast zorgen een kiepraam en mechanische ventilatie voor prettig daglicht en frisse lucht.
Tweede verdieping:
Via een vaste trap bereik je de tweede verdieping. Op de overloop bevinden zich de aansluiting voor de wasmachine, de transformator voor de zonnepanelen en de mechanische ventilatie. Een groot dakraam zorgt hier voor extra licht. Daarnaast vind je hier een ruime vierde slaapkamer met een dakkapel, wat zorgt voor extra ruimte en comfort.
Tuin:
De zonnige achtertuin op het zuiden is onderhoudsvriendelijk aangelegd met een groot terras en groenborders eromheen. Achterin de tuin staat een vrijstaande houten berging, ideaal voor fietsen en tuingereedschap. Via de achterom heb je met de fiets toegang tot de straat, via het afgesloten gemeenschappelijke binnenterrein met parkeerplaatsen.
Kortom: een verrassend ruime en sfeervolle stadswoning met vier slaapkamers, een zonnige tuin op het zuiden en het comfort van modern wonen, gelegen in de levendige en geliefde Rivierenwijk!
Bijzonderheden:
– Woonoppervlakte ca. 125 m²
– Bouwjaar 2009
– Energielabel A++
– Tuingerichte woonkamer met grote glazen pui en openslaande deuren
– Vier ruime slaapkamers
– Verwarming door middel van stadsverwarming
– Zonnige achtertuin op het zuiden
– Grote vrijstaande houten berging
– Gelegen aan een rustig, afgesloten binnenterrein
– Parkeerplaats op het afgesloten binnenterrein separaat te koop
– Kindvriendelijke woonomgeving met speelvoorzieningen, scholen en kinderopvang
– Slechts 5 minuten fietsen van het centrum van Utrecht
– Goede bereikbaarheid via openbaar vervoer en uitvalswegen
– Oplevering in overleg, kan snel
Nieuwsgierig geworden? Maak snel een afspraak voor een bezichtiging via onze website en ervaar zelf de sfeer en ruimte van deze fijne stadswoning!
Kenmerken
- Status Verkocht
- Prijs € 765.000 k.k.
- Type woning Eengezinswoning
- Woonoppervlakte 125 m²
- Aantal kamers 5
- Inhoud 450 m³
- Perceeloppervlakte 110 m²
- Bouwjaar 2009
- Energielabel A++
- Aanvaarding In overleg
- Ligging Aan rustige weg, In woonwijk
De woning in beeld
Plattegronden
In de buurt
Woningen in beeld
Deel deze pagina
Contact opnemen
Stuur ons een berichtje. We helpen je graag!
Cookies
Kies welke cookies we mogen gebruiken.
365makelaardij gebruikt cookies. Zie de cookieinstellingen voor meer informatie.
Lees policy
