Omschrijving
Direct een bezichtiging inplannen? Dat kan 24/7 via onze eigen website!
Zoek je een ruim appartement aan de rand van het bruisende hart van Utrecht en de natuur rond Oud-Zuilen, kom dan een kijkje nemen bij deze woning gelegen op de vierde verdieping van het appartementencomplex ‘Nieuw Zuylen’ aan de Daalseweghof! Dit keurig onderhouden 3-kamer appartement heeft onder andere een royale woonkamer, twee slaapkamers, een berging in de kelder en een eigen parkeerplaats op een afgesloten terrein direct voor het gebouw. Hier combineer je de voordelen van buiten wonen met het leven in de grote stad.
De locatie is geweldig; dichtbij de Vecht en vlakbij Slot Zuylen. Een omgeving waar je heerlijk kan wandelen en fietsen. De bus stopt voor de deur en brengt je snel naar hartje Utrecht. Per fiets is de binnenstad binnen 15 minuten bereikbaar, de Maarsseveense plassen zelfs binnen 10 minuten. De fietsenberging in de kelder is bereikbaar via een buitendeur met trap en fietsgoot, maar ook met de ruime lift. Goed om te weten als je elektrisch fietst!
Bovendien woon je zorgeloos en veilig. Het gebouw met 15 appartementen is omringd door water. Dat water staat in verbinding met de Vecht. Bij het appartement hoort een eigen parkeerplaats achter de slagboom. Geen gesleep met boodschappen; de privé-parkeerplaats ligt pal voor de deur. Uiteraard zijn ook de andere voorzieningen zoals winkels en scholen en de uitvalsweg richting de snelwegen op korte afstand gelegen.
Kortom, een heerlijk appartement met een fantastisch uitzicht waar je fijn kan wonen!
Indeling
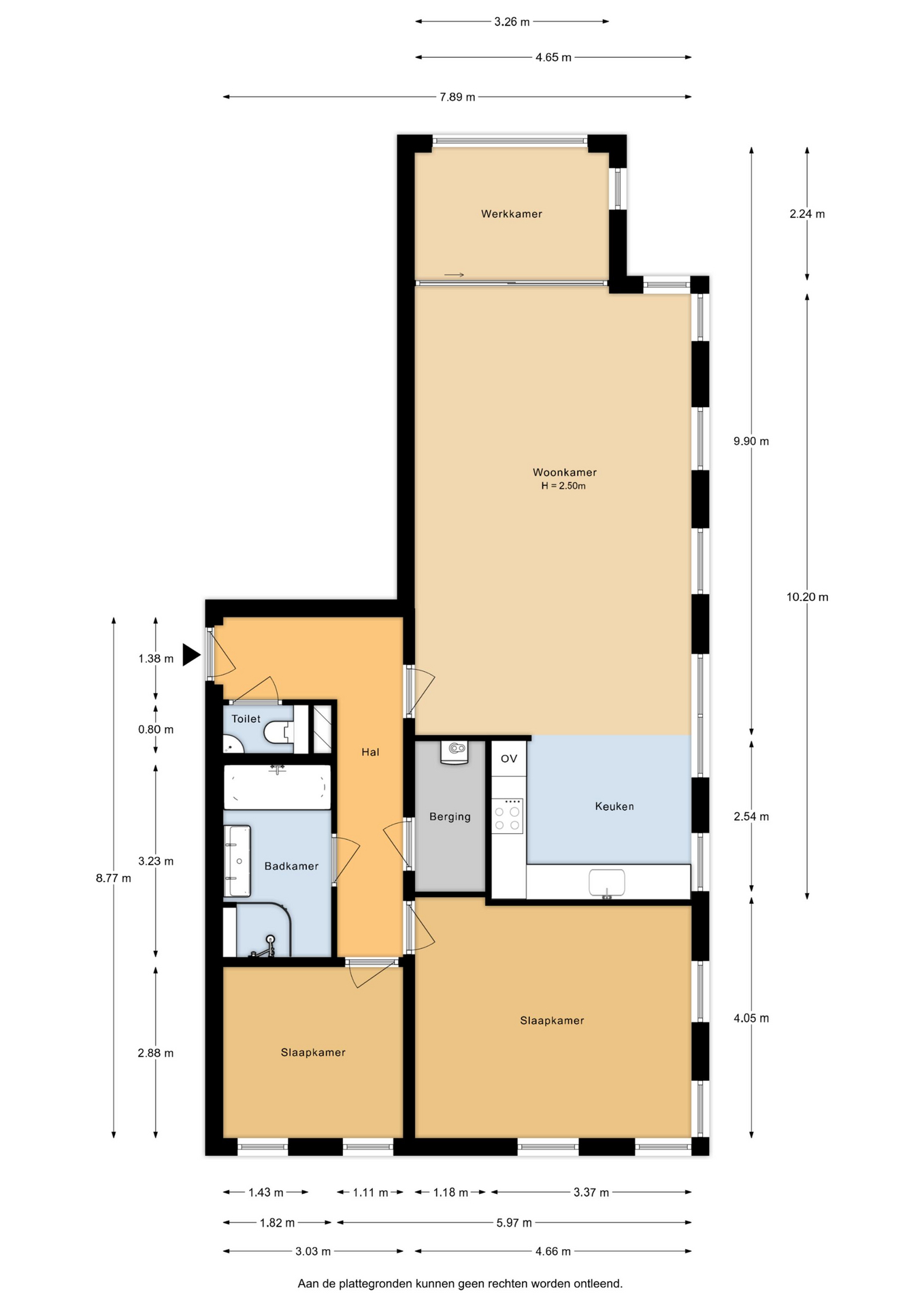
Centrale entree met links van de toegangsdeur de brievenbussen en het bellentableau. De lift bevindt zich in de hal, daarmee zijn alle ruimten te bereiken.
Vierde verdieping:
Bij binnenkomst in de woning geeft de hal toegang tot alle vertrekken. De ruime en lichte woonkamer met open keuken vormt het hart van het appartement. Dankzij de royale opzet is er volop ruimte voor zowel een comfortabele zithoek als een gezellige eethoek.
Via een schuifpui bereik je de aparte werkkamer: perfect als thuiskantoor, maar ook geschikt als hobbyruimte of extra kamer naar wens.
De moderne, strak afgewerkte keuken beschikt over veel kastruimte en diverse inbouwapparatuur, waaronder een oven, koelkast, vriezer, combi-oven/magnetron en vaatwasser – ideaal voor wie van koken en gemak houdt.
De woning beschikt over twee slaapkamers. De hoofdslaapkamer van ruim 18 m² biedt meer dan voldoende ruimte voor een groot bed en een royale kledingkast. De tweede slaapkamer van circa 7 m² is uitstekend geschikt als kinder-, logeer- of hobbykamer.
De ruime, volledig betegelde badkamer is compleet uitgevoerd met een ligbad, douchecabine en dubbele wastafel. Daarnaast is er een separaat toilet met fonteintje. In de praktische inpandige berging bevinden zich de cv-ketel en de aansluiting voor de wasmachine en droger.
Al met al is dit een ruim en goed ingedeeld appartement met moderne voorzieningen, ideaal voor comfortabel wonen op een centrale locatie.
Berging:
Bij het appartement hoort een aparte berging in de kelderverdieping, deze is bereikbaar via een buitendeur met trap en fietsgoot, maar ook met de ruime lift.
Bijzonderheden:
– Ruim appartement met 102m2 woonoppervlakte
– Voorzien van twee slaapkamers én een werkkamer
– Energielabel B
– Volledig voorzien van dubbel glas
– Gezonde VvE, servicekosten € 280,- per maand
– Eigen parkeerplaats
– Erfpacht, Eeuwigdurend afgekocht
– Dichtbij de stad en de recreatiegebieden van de omgeving;
– Oplevering in overleg
Nieuwsgierig geworden? Plan snel een bezichtiging in via onze website!
Kenmerken
- Status Beschikbaar
- Prijs € 469.500 k.k.
- Type woning Appartement
- Woonoppervlakte 102 m2
- Totaal aantal kamers 3
- Aantal slaapkamers 2
- Aantal badkamers 1
- Badkamer faciliteiten Ligbad, douche, wastafelmeubel
- Inhoud 324 m3
- Bouwvorm Bestaande bouw
- Daktype Plat dak
- Verdiepingen 1
- Type appartement Portiekflat
- Woonlaag appartement 5
- Woonlaag vloer nummer 1
- Eigendom type Eigendom belast met erfpacht, eigendom belast met erfpacht
- Bestemming huidig Woonruimte
- Huidig gebruik Woonruimte
- Bouwjaar 2001
- Energie label B
- Liggingen Aan rustige weg, in woonwijk, vrij uitzicht
- Onderhoudswaardering (binnen) Goed
- Aangeboden sinds 2026-02-20
- Aanvaarding In overleg
- Tuin Geen tuin
- Opslag type Inpandig
- Opslag 8 m2
- Isolatie types Dubbel glas, volledig geisoleerd
- Central heating boiler Ja
- CV ketel bouwjaar 2025
- CV ketel brandstof Gas
- CV ketel eigendom Eigendom
- Warm water types Cv ketel
- Voorzieningen Mechanische ventilatie, buitenzonwering, lift
- Garage Parkeerplaats
- Parkeergelegenheden Openbaar parkeren
- VVE contributie Ja
De woning in beeld
Plattegrond
Niet gevonden wat je zocht?
Laat ons je helpen en plaats nu gratis een vrijblijvende zoekopdracht.
