Omschrijving
Direct een bezichtiging inplannen? Dat kan 24/7 via onze eigen website!
Klussers opgelet! Zoek jij een woning met enorm veel potentie? Deze karakteristieke tussenwoning uit 1913, gelegen aan de Croeselaan in de populaire Dichterswijk in Utrecht is wat je zoekt! De woning heeft 105m2 woonoppervlakte, drie slaapkamers en een heerlijke achtertuin op het noord-oosten. Deze woning is de ideale uitvalsbasis om te genieten van alles wat Utrecht te bieden heeft!
Locatie:
De woning ligt in de geliefde Dichterswijk – een wijk waar stadse levendigheid en ontspannen wonen hand in hand gaan. Binnen enkele minuten fiets je naar Utrecht Centraal, station Vaartsche Rijn of het bruisende stadscentrum. Ook met de auto ben je uitstekend bereikbaar: via de nabijgelegen uitvalswegen A2, A12 en A27 rijd je zo de stad uit.
Voor de dagelijkse boodschappen hoef je niet ver: op loopafstand vind je onder meer een Albert Heijn en Plus supermarkt, evenals diverse speciaalzaken. Sport- en speelvoorzieningen liggen eveneens om de hoek. En ben je toe aan iets lekkers of gezelligs? Dan zit je hier helemaal goed. Trakteer jezelf op ambachtelijk ijs bij IJssalon Lorenzo, proef lokale kazen en Utrechtse streekproducten bij BijKees, of ontdek de vele horecazaken in de omgeving. Van de sfeervolle Veilinghavenkade tot de creatieve hotspots van Rotsoord en het altijd levendige Ledig Erf – er is altijd wel een fijne plek voor een koffie, lunch, borrel of avond uit.
Indeling
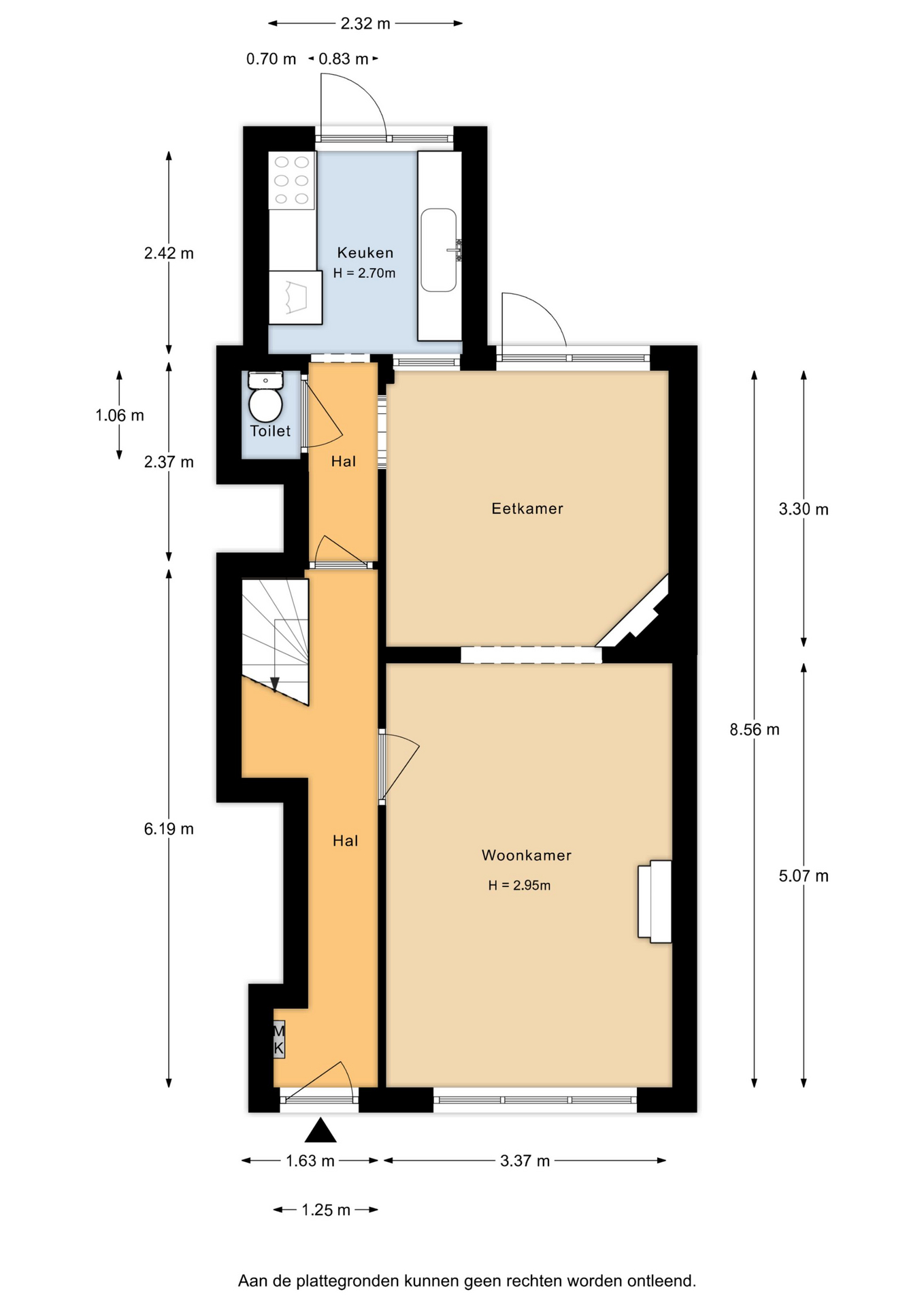
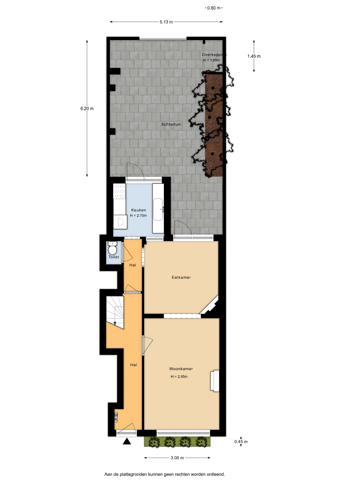
Begane grond:
Bij binnenkomst word je verwelkomd in het originele tochtportaal met meterkast en trapopgang. Vanuit de hal met toilet stap je de sfeervolle woonkamer binnen, waar de hoge plafonds, houten vloer en schouw met houtkachel meteen voor warmte en karakter zorgen. De eetkamer sluit hier mooi op aan en loopt door naar de eenvoudige keuken in de aanbouw.
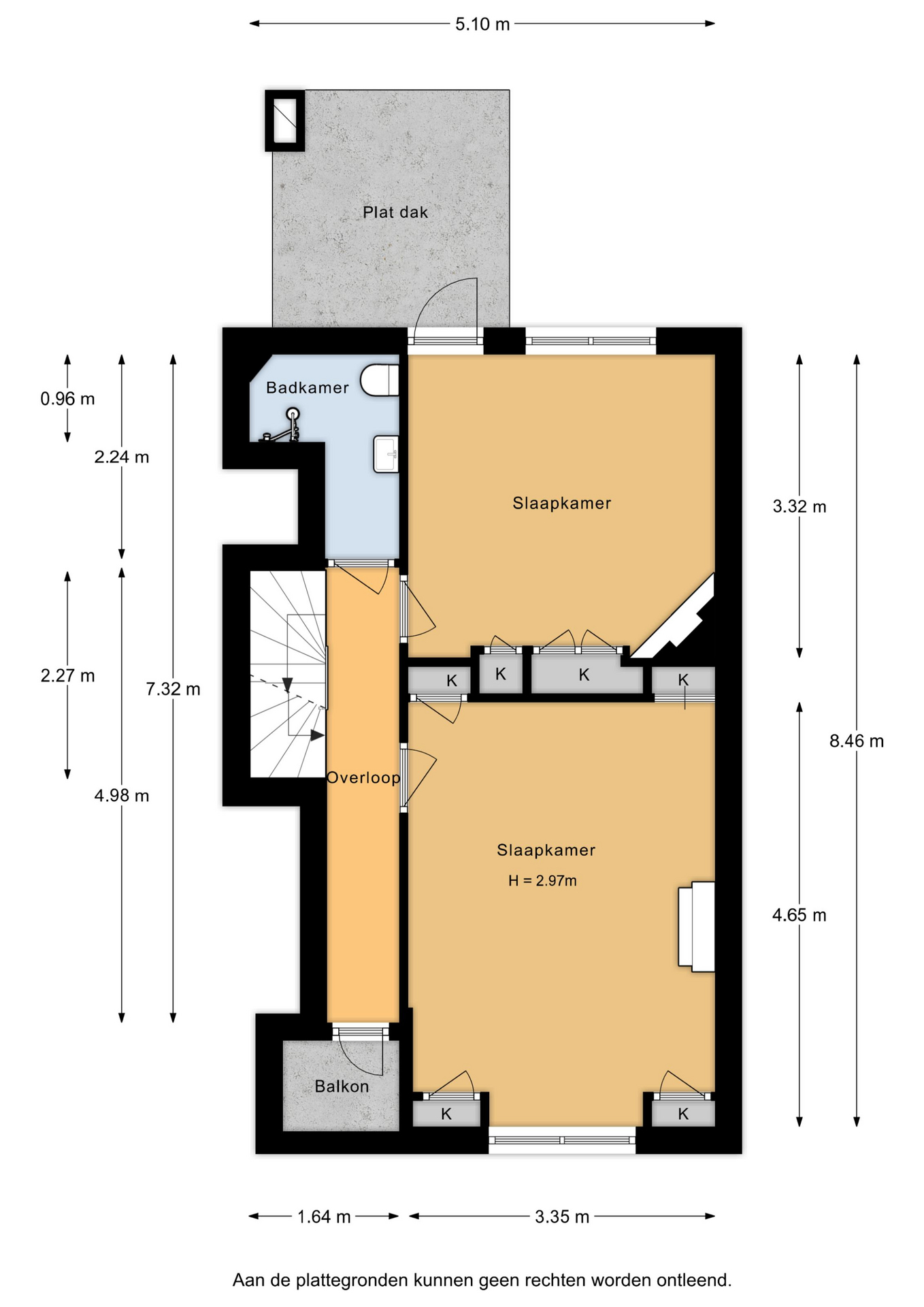
Eerste verdieping:
De overloop geeft toegang tot twee royale slaapkamers, beide met hoge plafonds en praktische vaste kasten. De badkamer is compleet met douche, wastafel en toilet.
Tweede verdieping:
Op de tweede verdieping vind je een overloop met toegang tot een bijzonder ruime slaapkamer, voorzien van dakkapel. Via een luik met vlizotrap kom je op de vliering, handig voor extra opbergruimte. De cv-ketel staat praktisch opgesteld op de overloop.
Buiten:
De tuin is verrassend ruim voor zo dicht bij de stad en biedt bovendien veel privacy. Hier geniet je ’s ochtends van een kop koffie in de zon en sluit je je dag af met een borrel of gezellige barbecue. Een heerlijke buitenruimte die voelt als een natuurlijk verlengde van de woonkamer.
Bijzonderheden:
– Karakteristieke tussenwoning gelegen in de populaire Dichterswijk;
– Het betreft een gemeentelijk monument
– Bouwjaar 1913
– Woonoppervlakte ca. 105m²
– Authentieke details: glas-in-lood, schouw en paneeldeuren en hoge plafonds
– Ruime stadstuin met veel privacy
– Vliering voor extra opbergruimte
– Gelegen nabij het bruisende centrum van Utrecht, op loopafstand van winkels, horeca en openbaar vervoer
– Oplevering in overleg
– In de koopovereenkomst worden een niet-zelfbewonings-, asbest- en oudersomsclausule opgenomen.
Kom langs en ervaar zelf de charme van deze fijne plek in de geliefde Dichterswijk!
Kenmerken
- Status Beschikbaar
- Prijs € 595.000 k.k.
- Type woning Woonhuis
- Woonoppervlakte 105 m2
- Totaal aantal kamers 4
- Aantal slaapkamers 3
- Aantal badkamers 1
- Badkamer faciliteiten Toilet, wastafel, inloopdouche
- Inhoud 390 m3
- Oppervlakte gebouw gebonden buitenruimte 1 m2
- Perceel oppervlakte 90 m2
- Perceel 3.962 m2
- Bouwvorm Bestaande bouw
- Daktype Samengesteld dak
- Verdiepingen 4
- Eigendom type Volle eigendom
- Bestemming huidig Woonruimte
- Huidig gebruik Woonruimte
- Speciale kenmerken Monumentaal pand
- Bouwjaar 1913
- Energie label E
- Liggingen In woonwijk
- Onderhoudswaardering (binnen) Goed
- Aangeboden sinds 2025-12-01
- Aanvaarding In overleg
- Hoofdtuin locatie Noordoost
- Hoofdtuin oppervlakte 32 m2
- Hoofdtuin type Achtertuin
- Tuin Achtertuin
- Quality garden Normaal
- Boiler fuel type Gas
- Boiler property Eigendom
- Warm water types Cv ketel
- Garage Geen garage
- Parkeergelegenheden Openbaar parkeren, betaald parkeren, parkeervergunningen
De woning in beeld
Plattegrond
Niet gevonden wat je zocht?
Laat ons je helpen en plaats nu gratis een vrijblijvende zoekopdracht.
