Omschrijving
Sfeervol jaren ’30 huis met zonnige tuin in het gezellige Zuilen
Wonen in een sfeervol jaren ’30 huis, met drie slaapkamers, een zonnige tuin én een ruime berging — dat kan aan de Adriaan van Bergenstraat! Deze woning is de afgelopen jaren keuring onderhouden en helemaal klaar voor de toekomst. Met een moderne afwerking en de sfeervolle details is dit zo’n huis waar je direct verliefd op wordt.
De straat is bovendien recent opnieuw ingericht: groener, veiliger en met meer ruimte voor fietsers. Een fijne plek om thuis te komen!
De buurt – Zuilen
Zuilen is een geliefde wijk in Utrecht-Noordwest, omringd door de Vecht en het Amsterdam-Rijnkanaal. Je vindt hier alles wat het wonen fijn maakt: basisscholen, speeltuintjes, winkels (zoals winkelcentrum Rokade en de Amsterdamsestraatweg) en gezellige koffietentjes in het hippe Werkspoorgebied.
Ook de natuur is dichtbij: het Julianapark, de Vecht en Oud Zuilen liggen op loopafstand en de Maarsseveense Plassen zijn maar een paar minuten fietsen. Met station Zuilen en de A2 om de hoek ben je goed bereikbaar, en met de fiets sta je in 10 minuten in het centrum. Parkeren? Dat kan hier nog gratis, gewoon voor de deur.
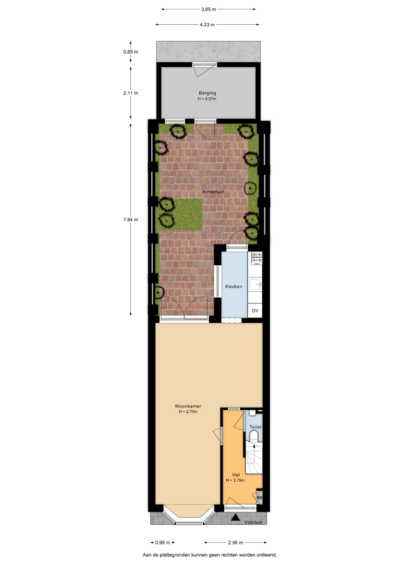
Indeling
Begane grond
De verzorgde en praktische hal biedt toegang tot een modern toilet en trap naar boven.
De ruime en lichte woonkamer straalt direct sfeer uit dankzij de mooie erker aan de voorzijde, voorzien van karakteristiek glas-in-lood. Aan de achterzijde zorgen de openslaande deuren voor een fijne verbinding met de tuin – ideaal om binnen en buiten samen te laten komen.
De halfopen keuken is keurig afgewerkt en uitgerust met diverse inbouwapparatuur, waaronder een vaatwasser, combi-oven en 4-pits fornuis. Vanuit de keuken bereik je de fraai aangelegde, groene achtertuin: een heerlijke plek om te ontspannen en te genieten van het buitenleven. Achter in de tuin bevindt zich een ruime stenen berging met elektra én een praktische doorgang naar het achterom.
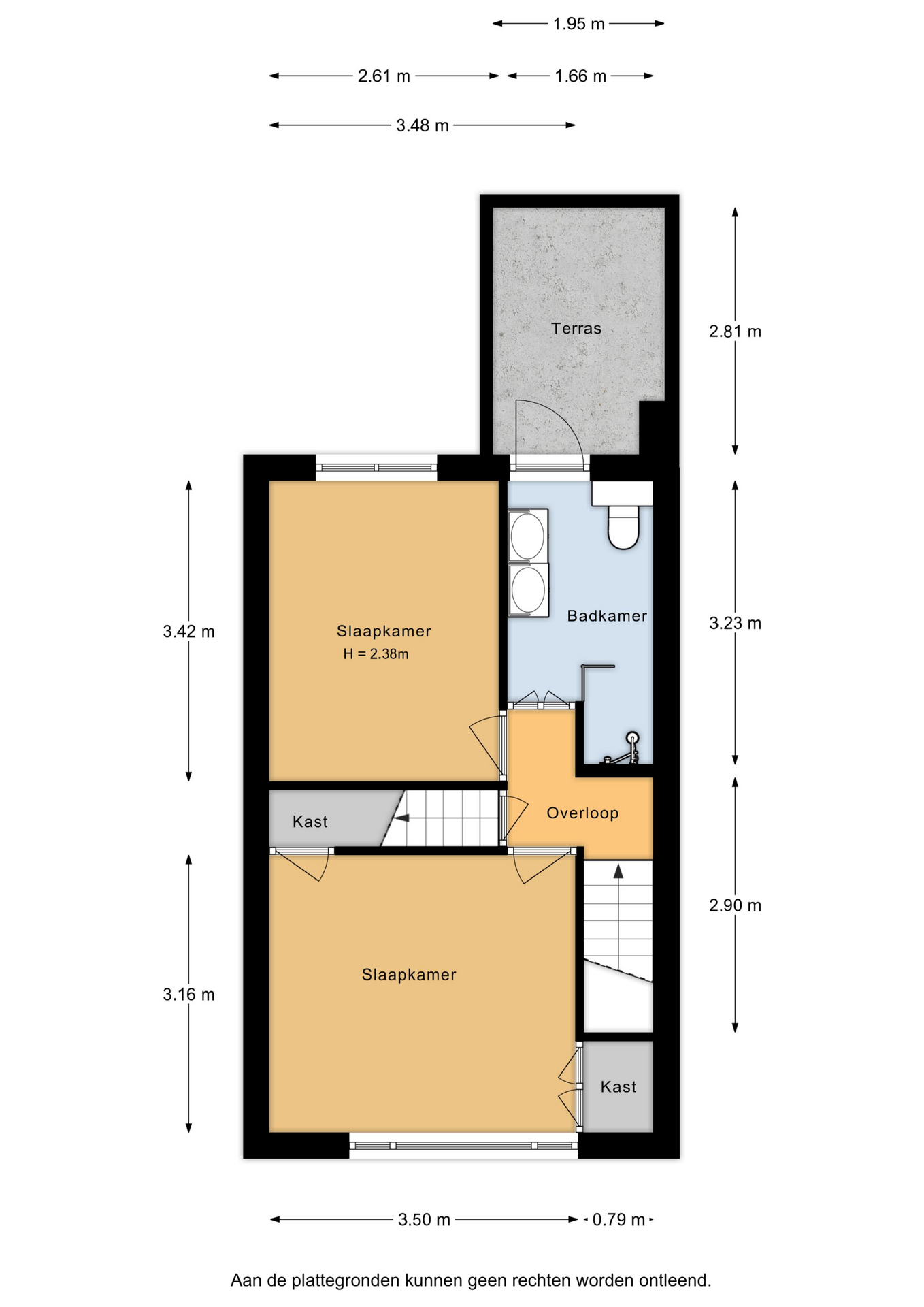
Eerste verdieping
Hier vind je twee goed bemeten slaapkamers en een moderne badkamer met inloopdouche, tweede toilet en wastafelmeubel met dubbele waskom. Vanuit de badkamer heb je toegang tot een balkon, een fijne plek om ’s ochtends even van de buitenlucht te genieten. De verdieping is voorzien van een nette laminaat vloer als beneden.
Tweede verdieping
Via een vaste trap bereik je de ruime zolderverdieping. Dankzij de dakkapel aan de achterzijde en de 4 dakramen aan de voorzijde is dit een heerlijke, lichte ruimte. Hier kun je eenvoudig een master bedroom of extra werkkamer creëren. Deze verdieping beschikt over een wasmachineaansluiting, wastafel en veel bergruimte achter de knieschotten. Extra opbergruimte tref je op de halfopen vliering. Dankzij de hoge nok (circa 3,30 meter) voelt de ruimte extra ruim aan.
De achtertuin
Wat een heerlijke plek om te zijn! De tuin is diep, groen en met zorg aangelegd – perfect om tot rust te komen of gezellig te borrelen met vrienden. Dankzij de verschillende zitplekken geniet je hier de hele dag van zowel zon als schaduw. Achterin de tuin staat een ruime stenen berging met elektra en wateraansluiting en via het achterom ben je zo weer buiten de tuin.
De kenmerken op een rij:
• Typische jaren ’30 uitstraling
• Sfeervolle woonkamer met erker
• Openslaande deuren naar de tuin
• Verzorgd en netjes afgewerkt
• Drie ruime slaapkamers
• Zolder met dakkapel en 4 dakramen
• Gelegen aan vernieuwde straat
• Energielabel C
Kortom
Een sfeervol, instapklaar jaren ’30 huis op een heerlijke plek in Zuilen. Modern, licht en met veel karakter. Zie jij jezelf hier wonen? Neem dan snel contact op voor een bezichtiging — we laten het je graag zien!
Kenmerken
- Status Verkocht
- Prijs € 550.000 k.k.
- Type woning Woonhuis
- Woonoppervlakte 92 m2
- Totaal aantal kamers 4
- Aantal slaapkamers 3
- Aantal badkamers 1
- Badkamer faciliteiten Toilet, dubbele wastafel, inloopdouche
- Inhoud 336 m3
- Oppervlakte gebouw gebonden buitenruimte 5 m2
- Perceel oppervlakte 92 m2
- Bouwvorm Bestaande bouw
- Daktype Zadeldak
- Verdiepingen 3
- Eigendom type Volle eigendom
- Bestemming huidig Woonruimte
- Huidig gebruik Woonruimte
- Bouwjaar 1931
- Energie label C
- Liggingen Aan rustige weg, in woonwijk
- Onderhoudswaardering (binnen) Goed
- Aangeboden sinds 2025-11-13
- Aanvaarding In overleg
- Hoofdtuin locatie Oost
- Hoofdtuin oppervlakte 33 m2
- Hoofdtuin type Achtertuin
- Tuin Achtertuin
- Quality garden Verzorgd
- Opslag type Vrijstaand steen
- Opslag 8 m2
- Isolatie types Dubbel glas, volledig geisoleerd
- Central heating boiler Ja
- CV ketel bouwjaar 2016
- CV ketel eigendom Eigendom
- Warm water types Cv ketel
- Voorzieningen Tv kabel, dakraam, natuurlijke ventilatie
- Garage Geen garage
- Parkeergelegenheden Openbaar parkeren
De woning in beeld
Plattegrond
Niet gevonden wat je zocht?
Laat ons je helpen en plaats nu gratis een vrijblijvende zoekopdracht.
