Omschrijving
Kom langs tijdens de landelijke Open Huizen Route op zaterdag 28 maart! De verkopers verwelkomen je graag en geven een rondleiding tussen 11:00 en 15:00 uur.
Wonen op een wooneiland in een royale hoekwoning van 193 m² midden in Utrecht Leidsche Rijn? Dit is je kans! Deze instapklare en energiezuinige woning uit 2018 combineert privacy, comfort en natuur. Met 193 m² woonoppervlakte, een terras op het zuiden, een warmtepomp, vloerverwarming, zonnepanelen en een energielabel A+++ is deze woning volledig toekomstbestendig.
De woning is uitstekend onderhouden en biedt alles wat je zoekt: een royale woon-/eetkamer, een luxe keuken, vier volwaardige slaapkamers, moderne badkamer, een zonnig balkon én een prachtig waterterras. Buiten geniet je van vogels, waterleven en in de winter zelfs van schaatsplezier. Parkeren kan op de eigen oprit. In de inpandige berging is plek voor fietsen, tuingereedschap of golfclubs.
De woning ligt in het kleinschalige project WijdeOever, op een rustig wooneiland in de wijk Terwijde (Leidsche Rijn). Hier woon je letterlijk omringd door water, met het Waterwinpark als groene achtertuin. Een unieke plek waar privacy en comfort hand in hand gaan — en alle voorzieningen verrassend dichtbij zijn. De verkeersluwe straat met bomen en groen nodigt uit tot ontspannen wandelen naar het water.
INDELING
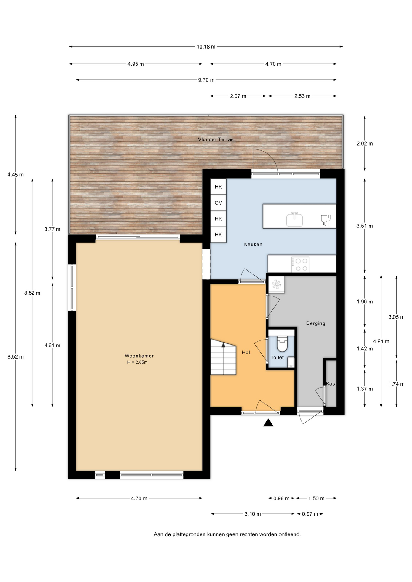
Begane grond:
Via de eigen oprit bereik je de entree. De ruime hal geeft toegang tot het moderne toilet, de inpandige berging en de woonkamer.
Zodra je de living binnenstapt, valt direct de royale maatvoering (ca. 40 m²) en de prachtige lichtinval op. De grote raampartijen en schuifpui creëren een heerlijke doorzonruimte met vrij uitzicht op het waterterras. Hier is volop plek voor een comfortabele zithoek én een grote eettafel.
De halfopen keuken is een echte eyecatcher: strak vormgegeven met veel bergruimte en hoogwaardige inbouwapparatuur. Aan het eiland, uitgerust met twee vaatwassers, is ruimte voor drie barkrukken – ideaal voor gezellige avonden terwijl je kookt. De apparatenwand is fraai weggewerkt en voorzien van onder andere een oven, combimagnetron, koelkast en vriezer. Via zowel de keuken als de woonkamer stap je direct het zonnige waterterras op het zuiden op.
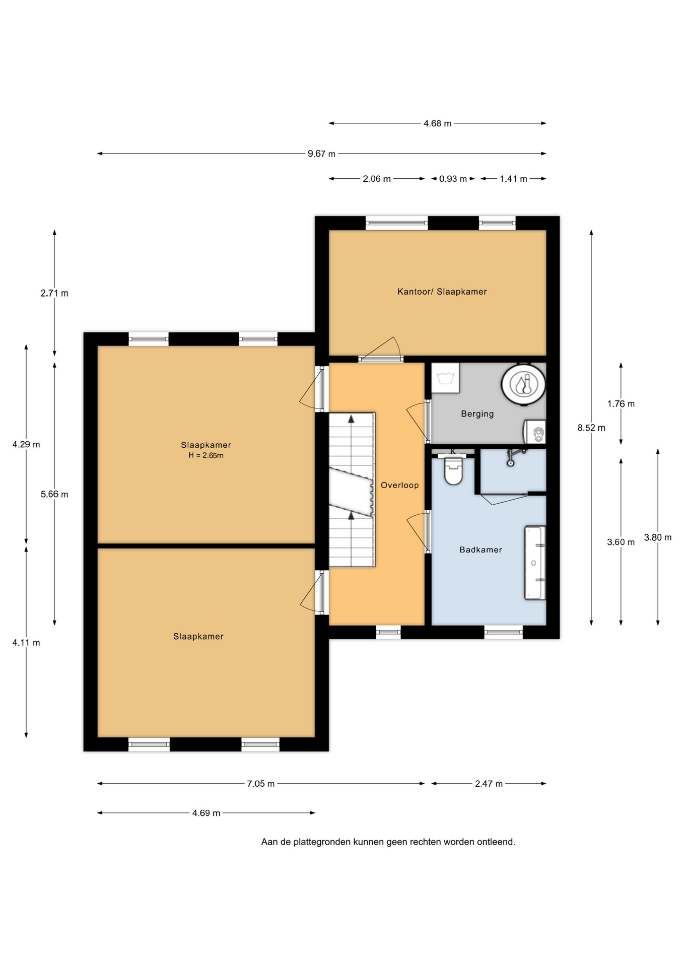
Eerste verdieping:
De overloop geeft toegang tot drie royale slaapkamers (ca. 20 m², 19 m² en 13 m²), een praktische was-/technische ruimte en de luxe badkamer.
De badkamer is modern en stijlvol afgewerkt en voorzien van een inloopdouche, toilet en een dubbel wastafelmeubel. De grote raampartijen zorgen voor een aangename lichtinval en een frisse, ruimtelijke uitstraling.
Tweede verdieping:
Hier bevindt zich de vierde slaapkamer en een ruime multifunctionele kamer — perfect als thuiswerkplek, inloopkast of eventueel te transformeren tot tweede badkamer.
Daarnaast beschikt deze verdieping over een heerlijk balkon op het zuiden: een fijne plek om in alle rust van de zon te genieten.
Tuin:
Aan de voorzijde vind je de oprit met eigen parkeerplaats en verzorgde groenborders. De achterzijde is een absolute blikvanger: een brede houten vlonder over de volle woningbreedte, gelegen op het zuiden.
Ligging:
De woning ligt aan een rustige, zeer kindvriendelijke straat zonder doorgaand verkeer. Dankzij de actieve VvE is het onderhoud van het eiland gezamenlijk geregeld. Voorzieningen zijn dichtbij: binnen 5 minuten fiets je naar winkelcentrum en station Terwijde, en binnen 10 minuten naar Leidsche Rijn Centrum met winkels, restaurants, bioscoop en meer. Ook het Maximapark, de Haarrijnse Plas en Kasteel de Haar liggen in de buurt. Met de auto rijd je binnen enkele minuten de A2 en A12 op. Scholen, kinderopvang, het St. Antonius Ziekenhuis en sportfaciliteiten zijn allemaal op loop- of fietsafstand.
Kortom, dit is een unieke kans om te wonen in een moderne, duurzame en uitstekend afgewerkte woning!
Bijzonderheden:
– Royale hoekwoning van ca. 193 m² woonoppervlakte;
– Energielabel A+++;
– 16 zonnepanelen;
– Warmtepomp voor verwarming en warmtepompboiler voor warm water;
– Volledig voorzien van vloerverwarming;
– Vier slaapkamers;
– Luxe keuken met uitgebreide inbouwapparatuur;
– Zonnig waterterras en voortuin;
– Parkeergelegenheid op eigen terrein;
– Perfecte ligging ten opzichte van uitvalswegen en openbaar vervoer;
– VVE bijdrage € 30,- per maand;
– Oplevering in overleg.
Ruimtelijk wonen aan of nabij het water van Terwijde!
In het noordelijke deel van Leidsche Rijn ligt de moderne, waterrijke wijk Terwijde. Brede watergangen, rietoevers en charmante bruggetjes bepalen hier de sfeer.
Wonen in WijdeOever betekent wonen in een groen en ontspannen woongebied. Dobber met je eigen bootje in het natuurwater, geniet van de ondergaande zon vanaf je terras en ervaar elke dag het vakantiegevoel, gewoon thuis.
De woningen liggen op een schiereiland en kenmerken zich door royale puien, terrassen boven het water en fraai met hout beklede gevels. Hagen en bomen op het binnenterrein zorgen voor een prettige, groene overgang tussen privé en openbaar gebied.
Kortom: een unieke kans voor wie royaal, duurzaam en waterrijk wil wonen in Utrecht.
Kenmerken
- Status Beschikbaar
- Prijs € 968.000 k.k.
- Type woning Woonhuis
- Woonoppervlakte 193 m2
- Totaal aantal kamers 6
- Aantal slaapkamers 4
- Aantal badkamers 1
- Badkamer faciliteiten Toilet, dubbele wastafel, inloopdouche, vloerverwarming
- Inhoud 688 m3
- Oppervlakte gebouw gebonden buitenruimte 40 m2
- Perceel oppervlakte 171 m2
- Bouwvorm Bestaande bouw
- Daktype Plat dak
- Verdiepingen 3
- Eigendom type Volle eigendom
- Bestemming huidig Woonruimte
- Huidig gebruik Woonruimte
- Bouwjaar 2018
- Energie label A+++
- Liggingen Aan water, aan park, aan rustige weg, in woonwijk, vrij uitzicht, beschutte ligging
- Onderhoudswaardering (binnen) Goed
- Aangeboden sinds 2026-03-06
- Aanvaarding In overleg
- Hoofdtuin locatie Zuid
- Hoofdtuin oppervlakte 45 m2
- Hoofdtuin type Zonneterras
- Tuin Voortuin, zonneterras
- Quality garden Verzorgd
- Opslag type Inpandig
- Isolatie types Volledig geisoleerd
- Voorzieningen Mechanische ventilatie, zonnepanelen
- Garage Geen garage
- Parkeergelegenheden Openbaar parkeren, op eigen terrein
De woning in beeld
Plattegrond
Niet gevonden wat je zocht?
Laat ons je helpen en plaats nu gratis een vrijblijvende zoekopdracht.
