Omschrijving
Ben je op zoek naar een instapklare, energiezuinige eengezinswoning met een zonnige tuin op het zuiden? Dan is deze woning precies wat je zoekt. Met 139 m² woonoppervlakte, een tuin op het zuiden, vloerverwarming via een warmtepomp, 16 zonnepanelen en een energielabel A+++ is deze woning volledig toekomstbestendig. Daarnaast bevindt de woning zich op een uitstekende locatie: op korte afstand van het centrum van Vleuterweide en op slechts 3 minuten lopen van NS-station Vleuten.
De ligging in de populaire wijk Vleuterweide maakt het plaatje compleet. Deze jonge wijk is niet voor niets zo geliefd: je woont hier centraal met alle gemakken binnen handbereik. Het winkelcentrum van Vleuterweide, snelle trein- en busverbindingen naar Utrecht én de uitvalswegen A2 en A12 zijn dichtbij. En voor wie houdt van natuur en ontspanning ligt het uitgestrekte Máximapark om de hoek – de ideale plek om te wandelen, fietsen of sporten.
Indeling
Begane grond:
De woning ligt aan een brede, autoluwe straat met een sfeervolle sloot in het midden. Via enkele treden bereik je het verhoogd gelegen huis. Aan de voorzijde bevindt zich een voortuin met ruimte voor een gezellig zitje, waar je ’s ochtends heerlijk van de zon kunt genieten.
De ruime hal is voorzien van een meterkast, garderobe, net afgewerkt toilet, trapopgang en toegang tot de woonkamer. De woonkamer en keuken zijn in 2021 volledig gerenoveerd. Dankzij de uitbouw en de brede opzet van 5,10 meter biedt de woonkamer volop leefruimte en openslaande deuren naar de zonnige tuin. Er is voldoende plek voor zowel een royale zithoek als een grote eettafel. De gehele begane grond is afgewerkt met een fraaie tegelvloer met vloerverwarming.
De luxe open keuken aan de voorzijde biedt veel kastruimte en werkoppervlak en is uitgerust met diverse inbouwapparatuur, waaronder een inductiekookplaat, koel-vriescombinatie, magnetron, stoomoven en vaatwasser. Onder de trap bevindt zich een praktische trapkast.
Eerste verdieping:
Op de eerste verdieping tref je aan de voorzijde een zeer grote slaapkamer, hier is ruimte voor een grote (inbouw)kast en tweepersoonsbed. Daarnaast zijn er nog twee goed bemeten slaapkamers. De verdieping is voorzien van een keurige laminaatvloer en strak gestucte wanden. De moderne badkamer beschikt over een ligbad, inloopdouche, wastafel en een tweede toilet. Deze verdieping is voorzien van lage temperatuur radiatoren.
Tweede verdieping:
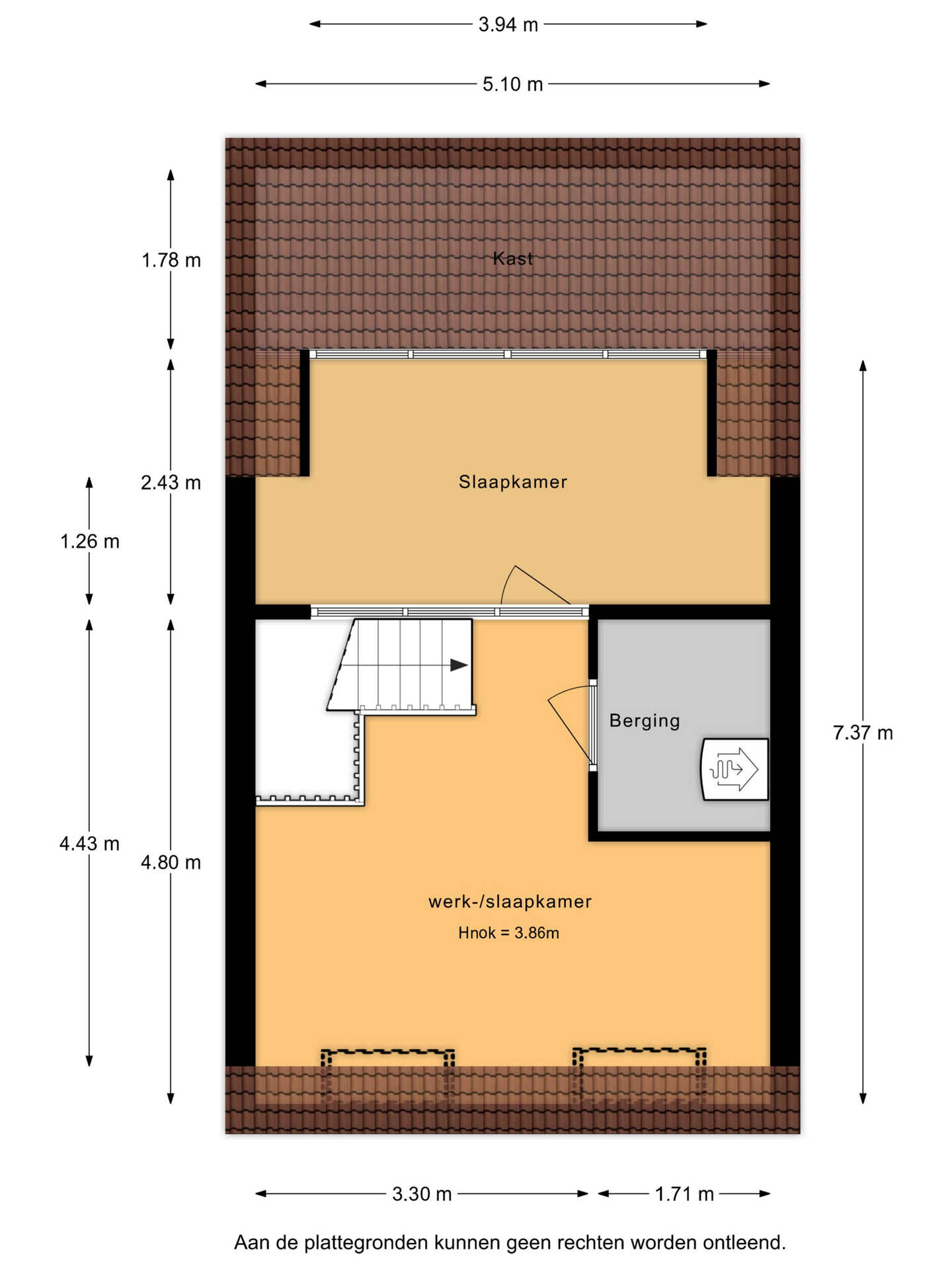
Deze verdieping is volledig gerenoveerd in 2022. Aan de voorzijde bevindt zich een multifunctionele ruimte die ideaal is als kantoor, hobbyruimte of logeerkamer. Dankzij de hoogte en twee grote dakramen is dit een bijzonder lichte en sfeervolle verdieping.
Aan de achterzijde bevindt zich een slaapkamer met een kunststof dakkapel over de volledige breedte. Achter de knieschotten is extra bergruimte aanwezig. Daarnaast is er een aparte technische-/wasruimte met de opstelling voor de wasmachine, warmtepomp en mechanische ventilatie.
Tuin:
De verzorgd aangelegde achtertuin ligt op het zuiden, waardoor je de hele dag van de zon kunt genieten. De tuin is volledig bestraat en voorzien van een houten berging en een achterom. De achterom geeft toegang tot de parkeerplaatsen achter de woning, wat zorgt voor een vrije en open ligging.
Bijzonderheden:
– Woonoppervlakte: 139 m²
– Zonnige, verzorgde achtertuin op het zuiden
– Maar liefst 5 slaapkamers
– Energiezuinig: vloerverwarming op begane grond via warmtepomp, HR++-glas, 16 zonnepanelen en energielabel A+++
– Lage temperatuurverwarmingen op de eerste verdieping
– Luxe keuken met uitgebreide inbouwapparatuur
– Brede, uitgebouwde woonkamer (5,10 m) met openslaande deuren
– Grote multifunctionele zolderruimte met veel licht
– Gelegen in autoluwe straat, kindvriendelijke wijk
– Gelegen in de populaire wijk Vleuterweide, nabij winkelcentrum en Máximapark
– Dichtbij dagelijkse voorzieningen, NS-station en uitvalswegen
– Oplevering in overleg
Kortom, dit is een unieke kans om te wonen in een moderne, duurzame en uitstekend afgewerkte woning in één van de meest geliefde wijken van Vleuten.
Interesse? Plan snel een bezichtiging met jouw NVM makelaar!
Kenmerken
- Status Beschikbaar
- Prijs € 675.000 k.k.
- Type woning Woonhuis
- Woonoppervlakte 139 m2
- Totaal aantal kamers 6
- Aantal slaapkamers 5
- Aantal badkamers 1
- Badkamer faciliteiten Ligbad, toilet, wastafelmeubel, inloopdouche
- Inhoud 485 m3
- Perceel oppervlakte 122 m2
- Perceel 6.385 m2
- Bouwvorm Bestaande bouw
- Daktype Zadeldak
- Verdiepingen 3
- Eigendom type Volle eigendom
- Bestemming huidig Woonruimte
- Huidig gebruik Woonruimte
- Bouwjaar 2012
- Energie label A+++
- Liggingen Aan rustige weg, in woonwijk
- Onderhoudswaardering (binnen) Goed
- Aangeboden sinds 2025-11-20
- Aanvaarding In overleg
- Hoofdtuin locatie Zuid
- Hoofdtuin oppervlakte 42 m2
- Hoofdtuin type Achtertuin
- Tuin Achtertuin, voortuin
- Quality garden Verzorgd
- Opslag type Vrijstaand hout
- Opslag 7 m2
- Isolatie types Volledig geisoleerd
- Voorzieningen Mechanische ventilatie, rolluiken, tv kabel, buitenzonwering, dakraam, glasvezel kabel, domotica, zonnepanelen
- Garage Geen garage
- Parkeergelegenheden Openbaar parkeren
De woning in beeld
Plattegrond
Niet gevonden wat je zocht?
Laat ons je helpen en plaats nu gratis een vrijblijvende zoekopdracht.
