Omschrijving
* English below *
Welkom aan de Kastanjestraat 96; tot in de puntjes verzorgd, instapklaar en sfeervol!
Deze prachtige hoekwoning gelegen op een rustige en kindvriendelijke locatie én op maar 7 minuten fietsen van de binnenstad! De woning is gebouwd in 2009, goed geïsoleerd (energielabel A) en beschikt over vier ruime slaapkamers, waarvan één in gebruik als werkkamer, een luxe keuken en een zonnige tuin op het zuidoosten met berging en achterom.
Gelegen in de Bomenbuurt, een vrij jonge en levendige woonwijk, waar de opzet en architectuur de buurt een gemoedelijke sfeer geven die zo typerend is voor oud-Utrechtse wijken als Ondiep. Omdat er alleen bestemmingsverkeer komt, spelen kinderen hier veilig op straat en kennen buren elkaar nog écht. Veel bewoners dragen bovendien actief bij aan de buurt – van een bewonersvereniging tot een tuincommissie die samen het groene parkje onderhoudt.
Alles wat je nodig hebt, ligt op loopafstand. Denk aan speeltuinen, scholen, sportvelden en winkels, maar ook aan de supermarkt en vertrouwde speciaalzaken zoals de warme bakker Boonzaaijer of bloemist Co De Rijk. Zin in iets lekkers? Geniet van een sfeervol diner bij restaurant Rooie Nel of Moos, proef de pizza’s van Satriale’s of geniet van een heerlijke cappuccino bij Bagels & Beans. En voor écht vers zuurdesembrood kan je terecht bij De Bakkert bij de Hondekop.
De buurt bruist en is volop in ontwikkeling. Daarbij ligt de woning ideaal: vlakbij de Vecht, waar je heerlijk kunt wandelen, hardlopen of suppen. Zin in meer? Spring op de fiets en binnen no-time sta je bij de Maarsseveense Plassen voor een dagje ontspanning aan het water. Of ontdek Fort aan de Klop – een uniek historisch eiland met gezellige horeca en allerlei activiteiten. Wil je de levendigheid van de stad ervaren? In slechts 7 minuten fiets je naar het oude centrum van Utrecht. Ook verder weg is geen probleem: de uitvalswegen zijn goed bereikbaar en Utrecht Centraal ligt minder dan 10 minuten fietsen van je voordeur.
Kortom: deze woning biedt het beste van twee werelden – de rust en charme van een hechte buurt én de dynamiek van de stad om de hoek. Een plek waar je je direct thuis voelt!
INDELING
Begane grond:
Achter de voordeur tref je de ruime hal met meterkast, een slim ingerichte garderobehoek, modern toilet, trapopgang naar de verdieping en toegang naar de woonkamer en keuken. Aan de voorzijde van de woning bevindt zich de prachtige, luxe maatwerkkeuken (2023) die aan twee zijden is opgesteld en voorzien van veel kastruimte en luxe inbouwapparatuur (Bosch, 2023) waaronder een vaatwasser, koelkast, vriezer, stoomoven, wijnklimaatkast (Caple, 2023), inductiekookplaat met recirculatie (Bora, 2023), en Quooker. De living ligt aan de tuinzijde en is mooi licht door de hoge raampartijen. De wanden en plafonds zijn strak afgewerkt, er ligt een doorlopende parketvloer en er is een handige trapkast voor voorraad ed.
Eerste Verdieping:
Op de eerste verdieping bevinden zich twee slaapkamers en de badkamer. De slaapkamer aan de achterzijde heeft een ruime inloopkast. De tweede slaapkamer aan de voorzijde is ook lekker ruim en mocht je een derde slaapkamer op deze verdieping willen, dan kan dat vrij gemakkelijk. De badkamer bevindt zich aan de voorzijde en heeft een ligbad, inloopdouche, wastafelmeubel met dubbele wastafel en een tweede toilet. Door het raam is er natuurlijk daglicht en ventilatie. Beide trappen in de woning zijn voorzien van vloerbedekking (2022) en zowel de eerste als de tweede verdieping zijn voorzien van een nette PVC vloer (2021).
Tweede Verdieping:
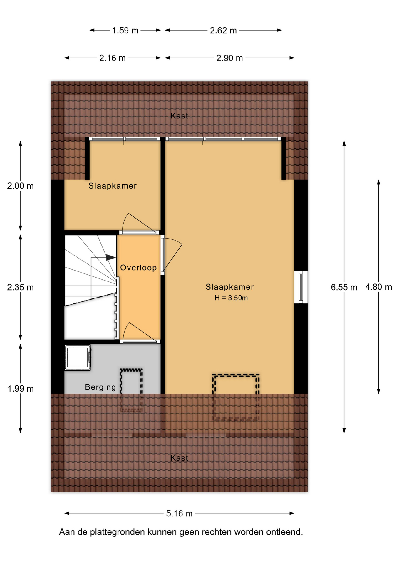
Deze verdieping is in 2021 volledig verbouwd waardoor de derde slaapkamer een echte blikvanger is geworden: ruim, met een dakraam, zijraam én dakkapel, waardoor de kamer wordt overspoeld met natuurlijk licht. De vierde slaapkamer doet momenteel dienst als kantoor, maar kan natuurlijk ook perfect als extra slaapkamer worden gebruikt. In een aparte ruimte vind je de aansluiting voor de wasmachine én voldoende ruimte voor een droogrek. Extra pluspunt: de woning beschikt over een ruime vliering – perfect voor het opbergen van koffers, winterjassen, dekbedden, tuinkussens, etc. Daarnaast zijn in alle ruimtes knieschotten verwerkt, ideaal voor nóg meer opbergruimte zonder dat het woonoppervlak verloren gaat.
Tuin:
De onderhoudsarme achtertuin, gelegen op het zonnige zuidoosten, is in 2021 aangelegd door een tuinarchitect en hovenier. De In-lite verlichting en stijlvolle tegels creëren een sfeer van luxe en comfort. Achterin staat een praktische houten berging, perfect voor fietsen en tuinspullen, en dankzij de achterom is de tuin ook gemakkelijk bereikbaar.
Bijzonderheden:
• 5-kamer hoekwoning in de Bomenbuurt
• Maatwerkkeuken uit 2023 met keramiek werkblad en luxe inbouwapparatuur
• Achtertuin op het zuidoosten voorzien van berging en achterom
• Voldoende parkeerruimte voor de deur
• Nabij OV, winkels, horeca en tal van andere voorzieningen
• Slechts 7 minuten fietsen van het centrum
• Volledige geïsoleerd
• Energielabel A
• Oplevering in overleg
Kun je niet wachten om binnen te kijken? Maak dan snel een afspraak met je (NVM) makelaar of vraag een bezichtiging aan via Funda, we laten je deze fijne woning graag zien!
**
Welcome to Kastanjestraat 96 – meticulously maintained, move-in ready, and full of charm!
This beautiful corner house is situated in a quiet and child-friendly area, just a 7-minute bike ride from the city center! Built in 2009, the home is well-insulated (Energy label A) and features four spacious bedrooms — one currently used as a home office — a luxury kitchen, and a sunny southeast-facing garden with a storage shed and back access.
Located in the ‘’Bomenbuurt’’, a relatively young and lively neighborhood, the layout and architecture give the area a cozy atmosphere reminiscent of traditional Utrecht districts like Ondiep. With only local traffic, children can play safely in the streets, and neighbors really know each other. Many residents actively contribute to the community, from the residents’ association to the garden committee that maintains the green park together.
Everything you need is within walking distance: playgrounds, schools, sports fields, and shops, including the supermarket and trusted local specialists such as warm baker Boonzaaijer or florist Co De Rijk. Looking for a treat? Enjoy a cozy dinner at Rooie Nel or Moos, try the pizzas at Satriale’s, or savor a delicious cappuccino at Bagels & Beans. For truly fresh sourdough bread, head to De Bakkert at de Hondekop.
The neighborhood is thriving and constantly evolving. The location is ideal: close to the Vecht River for walking, running, or SUP boarding. Want more? Hop on your bike and reach the Maarsseveense Plassen in no time for a relaxing day by the water. Or discover Fort aan de Klop – a unique historic island with charming restaurants and plenty of activities. Craving city life? The historic center of Utrecht is just a 7-minute bike ride away. Commuting further afield is also easy, with major roads nearby and Utrecht Central Station less than 10 minutes by bike.
In short: this home offers the best of both worlds – the peace and charm of a tight-knit neighborhood combined with the vibrancy of the city right around the corner. A place where you’ll feel instantly at home!
LAYOUT
Ground Floor:
Behind the front door, you’ll find a spacious hall with meter cupboard, a smartly designed wardrobe area, modern toilet, staircase to the first floor, and access to the living room and kitchen. At the front of the house is the stunning luxury custom kitchen (2023), laid out on two sides with plenty of storage and high-end built-in appliances (Bosch, 2023), including a dishwasher, fridge, freezer, steam oven, wine cooler (Caple, 2023), induction hob with recirculation (Bora, 2023), and Quooker boiling-water tap. The living room at the rear of the house is bright thanks to the large windows, with neatly finished walls and ceilings, a continuous parquet floor, and a handy under-stairs storage cupboard.
First Floor:
The first floor houses two bedrooms and the bathroom. The rear bedroom features a spacious walk-in closet. The second front bedroom is also generously sized, and creating a third bedroom on this floor would be straightforward. The bathroom at the front includes a bathtub, walk-in shower, double vanity, and a second toilet. A window provides natural light and ventilation. Both staircases are carpeted (2022), and the first and second floors feature a neat PVC floor (2021).
Second Floor:
Fully renovated in 2021, this floor now boasts an impressive third bedroom with a skylight, side window, and dormer, flooding the room with natural light. The fourth bedroom currently serves as an office but could easily be used as an extra bedroom. In a separate space, you’ll find the washing machine connection and enough room for a drying rack. A bonus: the house features a spacious attic—perfect for storing suitcases, winter coats, duvets, garden cushions, and more. In addition, all rooms are fitted with knee walls, providing even more storage space without sacrificing living area.
Garden:
The low-maintenance rear garden, facing southeast, was designed and laid out by a landscape architect and gardener in 2021. In-lite lighting and stylish tiles create a luxurious and comfortable ambiance. At the back, there is a practical wooden shed for bikes and garden tools, and the garden has convenient rear access.
Highlights:
• Spacious 5-room cornerhouse in the ‘’Bomenbuurt’’
• Custom kitchen (2023) with ceramic worktop and high-end appliances
• Southeast-facing garden with shed and rear access
• Plenty of parking in front of the house
• Close to public transport, shops, restaurants, and many other amenities
• Only 7 minutes by bike to the city center
• Fully insulated
• Energy label A
• Delivery in consultation
Can’t wait to see the interior? Schedule an appointment with your (NVM) real estate agent or request a viewing via Funda – we’d be happy to show you this lovely home!
Kenmerken
- Status Beschikbaar
- Prijs € 700.000 k.k.
- Type woning Woonhuis
- Woonoppervlakte 118 m2
- Totaal aantal kamers 5
- Aantal slaapkamers 4
- Aantal badkamers 1
- Badkamer faciliteiten Ligbad, toilet, dubbele wastafel, inloopdouche
- Inhoud 406 m3
- Perceel oppervlakte 112 m2
- Perceel 6.817 m2
- Bouwvorm Bestaande bouw
- Daktype Mansarde dak
- Verdiepingen 4
- Eigendom type Erfpacht
- Bestemming huidig Woonruimte
- Huidig gebruik Woonruimte
- Bouwjaar 2009
- Energie label A
- Liggingen Aan rustige weg, in woonwijk
- Onderhoudswaardering (binnen) Uitstekend
- Aangeboden sinds 2025-10-02
- Aanvaarding In overleg
- Hoofdtuin locatie Zuidoost
- Hoofdtuin oppervlakte 37 m2
- Hoofdtuin type Achtertuin
- Tuin Achtertuin, voortuin
- Quality garden Aangelegd onder architectuur
- Opslag type Vrijstaand hout
- Opslag 7 m2
- Isolatie types Volledig geisoleerd
- Warm water types Centrale voorziening
- Voorzieningen Mechanische ventilatie, glasvezel kabel
- Garage Geen garage
- Parkeergelegenheden Openbaar parkeren, betaald parkeren, parkeervergunningen
De woning in beeld




Plattegrond
Niet gevonden wat je zocht?
Laat ons je helpen en plaats nu gratis een vrijblijvende zoekopdracht.
