Omschrijving
Direct een bezichtiging inplannen? Dat kan 24/7 via onze eigen website!
Ben je op zoek naar een woning die je volledig naar eigen smaak kunt renoveren en moderniseren? Dan is deze karakteristieke jaren ’30-woning aan de Hoendiepstraat 17 in Utrecht absoluut het bekijken waard. De woning biedt een solide basis, authentieke charme én volop mogelijkheden om er jouw droomhuis van te maken.
De ligging is bijzonder aantrekkelijk: in het geliefde zuidelijke deel van de Rivierenwijk. In de directe omgeving vindt u diverse horecagelegenheden aan het water, winkelcentra, poppodium Tivoli De Helling en meerdere speel- en sportvoorzieningen, waaronder Park Transwijk en stadsboerderij Eilandsteede. Het centrum van Utrecht is binnen 10 minuten per fiets of bus bereikbaar. Station Vaartsche Rijn ligt op slechts enkele minuten fietsen en met de auto bent u snel op de ring.
Indeling
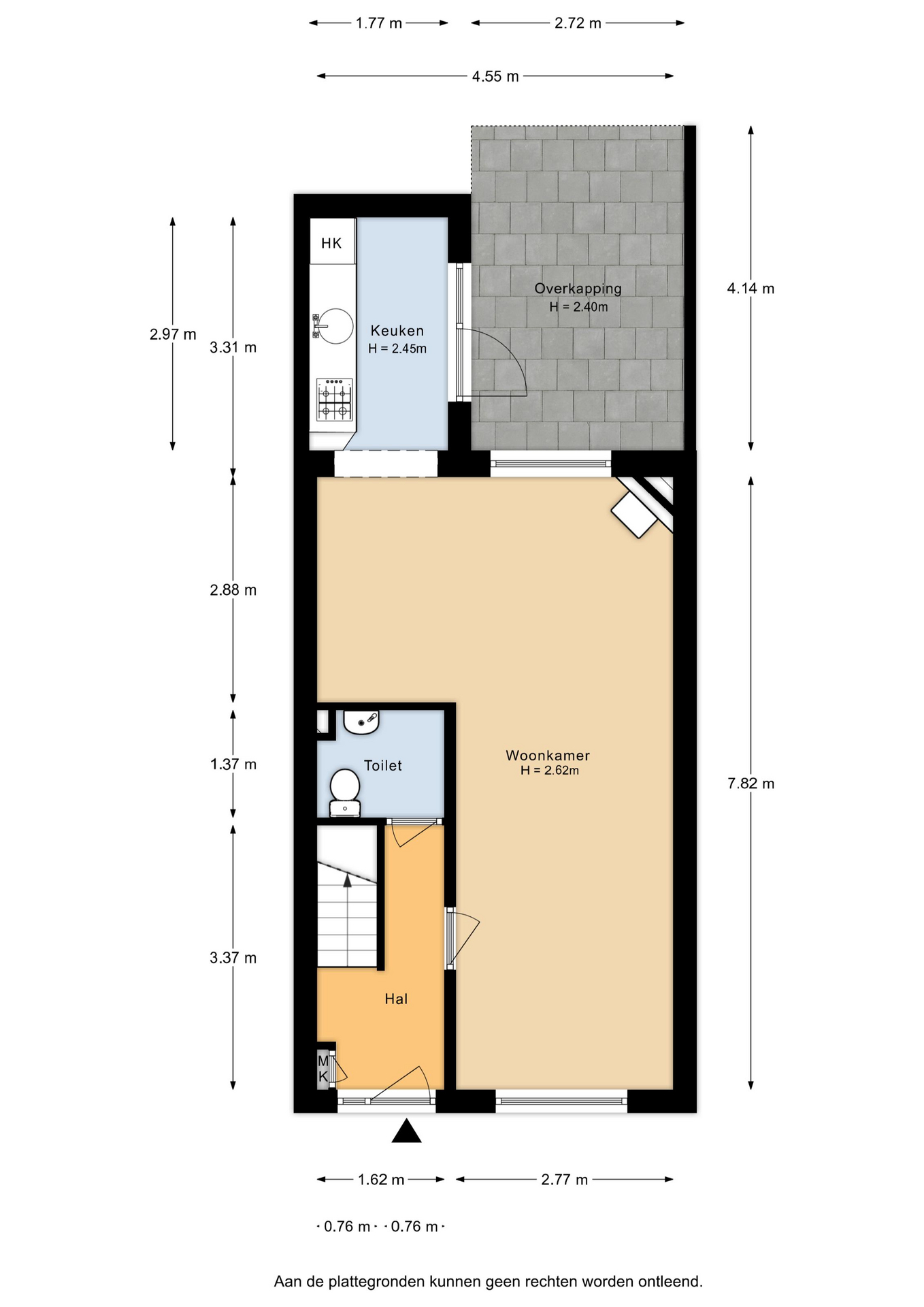
Begane grond:
Entree/hal met meterkast en trapopgang naar de eerste verdieping. Vanuit de hal bereik je de doorzon woon-eetkamer, voorzien van een gaskachel. Aansluitend bevindt zich de halfopen keuken met toegang tot de achtertuin. Deze verdieping biedt volop mogelijkheden om een moderne, open leefruimte te creëren.
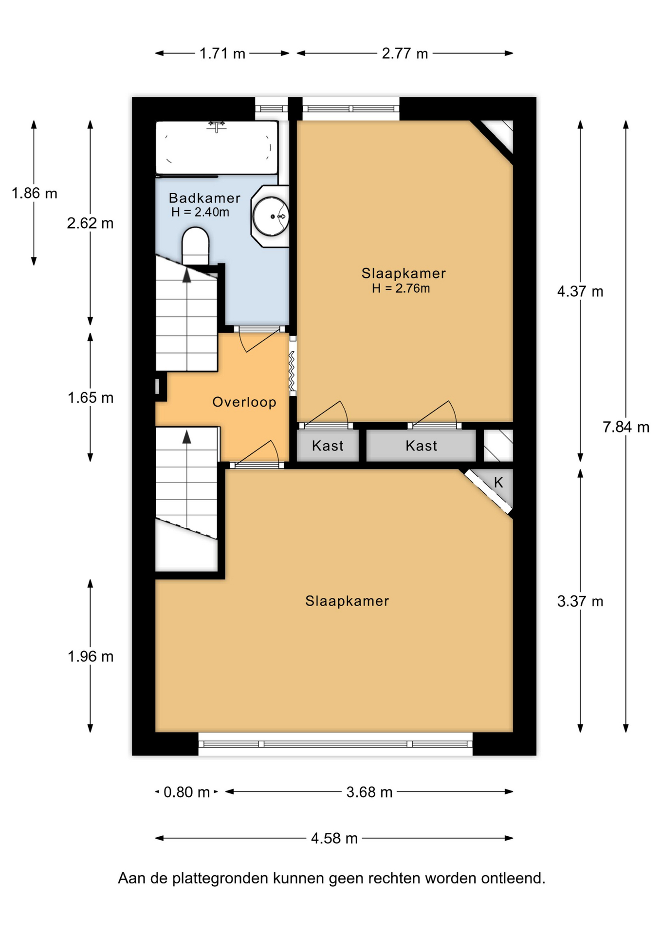
Eerste verdieping:
Overloop met toegang tot twee ruime slaapkamers. De badkamer beschikt over een raam voor natuurlijke ventilatie en is ingericht met een ligbad, wastafel en toilet. Deze verdieping vraagt om modernisering, maar biedt een goede basis qua ruimte en indeling.
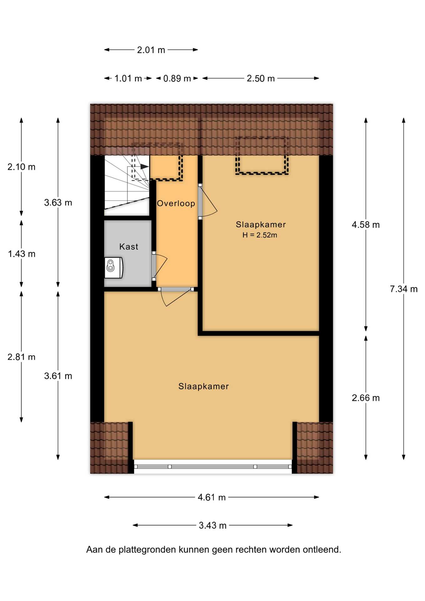
Tweede verdieping:
Overloop met dakraam. Twee royale slaapkamers, waarvan één voorzien van een dakraam en de andere van een dakkapel. Ideaal voor extra slaapkamers, een thuiswerkplek of hobbyruimte.
Tuin:
Diepe achtertuin van circa 12 meter, gelegen op het noordoosten, voorzien van een stenen berging. Met de juiste aandacht kan hier een fijne buitenruimte worden gerealiseerd.
Bijzonderheden:
– Authentieke jaren ’30 woning
– Veel potentie voor eigen invulling en waardevermeerding
– Woonoppervlakte ca. 107m²
– Energielabel D
– Vier slaapkamers
– Warmwatervoorziening via CV-ketel (eigendom)
– Gelegen op een zeer gewilde locatie in Utrecht
– De overdracht zal plaatsvinden bij DUO Notariaat te Utrecht
– Datum oplevering in overleg
– In de koopovereenkomst worden een niet-zelfbewonings-, asbest- en oudersomsclausule opgenomen.
Ben je niet bang om de handen uit de mouwen te steken en zie je de mogelijkheden? Boek dan snel een bezichtiging in via onze website!
Kenmerken
- Status Beschikbaar
- Prijs € 475.000 k.k.
- Type woning Woonhuis
- Woonoppervlakte 107 m2
- Totaal aantal kamers 5
- Aantal slaapkamers 4
- Aantal badkamers 1
- Badkamer faciliteiten Ligbad, toilet, wastafelmeubel
- Inhoud 379 m3
- Oppervlakte gebouw gebonden buitenruimte 11 m2
- Perceel oppervlakte 95 m2
- Perceel 5.321 m2
- Bouwvorm Bestaande bouw
- Daktype Zadeldak
- Verdiepingen 3
- Eigendom type Volle eigendom
- Bestemming huidig Woonruimte
- Huidig gebruik Woonruimte
- Speciale kenmerken Kluswoning
- Bouwjaar 1930
- Energie label D
- Liggingen Aan rustige weg, in woonwijk
- Onderhoudswaardering (binnen) Matig
- Aangeboden sinds 2025-12-17
- Aanvaarding In overleg
- Hoofdtuin locatie Noordoost
- Hoofdtuin oppervlakte 60 m2
- Hoofdtuin type Achtertuin
- Tuin Achtertuin
- Opslag type Aangebouwd steen
- Opslag 6 m2
- Boiler construction year 2020
- Boiler fuel type Gas
- Boiler property Eigendom
- Warm water types Cv ketel
- Garage Geen garage
- Parkeergelegenheden Betaald parkeren, parkeervergunningen
De woning in beeld
Plattegrond
Niet gevonden wat je zocht?
Laat ons je helpen en plaats nu gratis een vrijblijvende zoekopdracht.
