Omschrijving
Fazantenkamp 444 is een enorme verrassing achter de gevel. Aan de voorzijde oogt de woning als een standaard eengezinswoning doch gaat er hier heel veel ruimte schuil! De woning beschikt over maar liefst vier ruime slaapkamers, een volledig vernieuwde badkamer en een zee van leefruimte op de begane grond. Het absolute middelpunt is het imposante kookeiland – een echte blikvanger en de perfecte plek om samen te komen.
Daarnaast is er een royale achtertuin en een voortuin met garage en de mogelijkheid om te parkeren op eigen terrein. De woning is gelegen in de kindvriendelijke wijk Fazantenkamp aan een rustig, autoluw woonerf waar kinderen veilig kunnen spelen.
Maarssen is een ideale plek om te wonen, met volop voorzieningen en uitstekende verbindingen naar Utrecht. Met de auto bent u binnen 20 minuten in het stadscentrum of binnen 5 minuten op de snelwegen (A2 en Ring Utrecht). De trein is ook een uitstekend alternatief: het station van Maarssen is op 5 minuten fietsen en brengt u binnen 10 minuten naar Utrecht Centraal.
De wijk heeft alles binnen handbereik: diverse scholen, veel groen- en speelvoorzieningen en het wijkpark om de hoek en het vernieuwde winkelcentrum Bisonspoor liggen op korte fietsafstand. Voor ontspanning en recreatie liggen de prachtige Haarrijnse Plassen en Kasteel De Haar vlakbij. Kortom, een heerlijke woonomgeving die je niet mag missen!
INDELING
Begane grond:
Binnenkomend via de overdekte entree betreedt je de ruime hal met toilet, meterkast en toegang tot de garderobe/wasruimte en garage. Fraaie stalen schuifdeuren scheiden de hal van de woonkamer, waardoor licht en ruimte optimaal behouden blijven.
De living is werkelijk een plaatje: licht en ruim, met een woonkeuken centraal in de ruimte. Het kookeiland is een echte eyecatcher, voorzien van een inductiekookplaat met Bora afzuiging, Quooker en een bargedeelte met plek voor vier stoelen. De apparatenwand beschikt onder andere over een oven, koel-vriescombinatie en een wijnklimaatkast, terwijl de keuken ook veel kastruimte biedt.
Aan de achterzijde van de woning ligt het zit- en eetgedeelte, heerlijk licht dankzij de grote schuifpui. Een open haard zorgt voor extra sfeer. De visgraat PVC-vloer met vloerverwarming maakt de ruimte stijlvol en comfortabel.
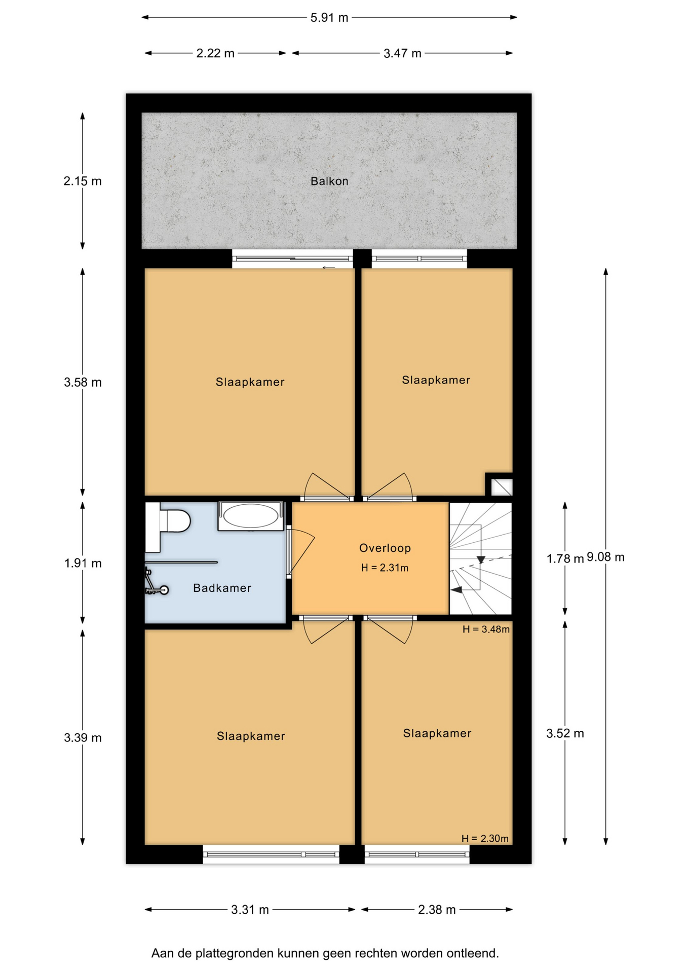
Eerste verdieping:
Op de eerste verdieping bevinden zich vier ruime slaapkamers en een stijlvolle badkamer. De twee grootste kamers lenen zich perfect als master bedroom, terwijl ook de overige kamers verrassend royaal zijn. Vanuit de slaapkamer aan de achterzijde is er middels een schuifpui toegang tot het balkon van circa 13,5 m² — een heerlijke plek om even buiten te ontspannen.
De badkamer is recent volledig vernieuwd en afgewerkt met moderne tegels in een tijdloze, neutrale kleurstelling. De ruimte is voorzien van een inloopdouche, stijlvol wastafelmeubel en toilet.
Bergvliering:
Via een vaste trap is de bergvliering bereikbaar. Met een oppervlakte van circa 5 m² biedt deze praktische ruimte volop mogelijkheden voor het opbergen van spullen. Hier bevindt zich tevens de C.V.-installatie.
Tuin:
De diepe achtertuin van circa 70 m² ligt op het noordwesten en is netjes, onderhoudsvriendelijk en sfeervol aangelegd met sierbestrating en groene borders. Dankzij het vrije uitzicht is er veel privacy, waardoor het een heerlijke plek is om te ontspannen. Daarnaast beschikt de tuin over een handige tuinkast en een achterom.
De ruime voortuin is strak aangelegd met sierbestrating en biedt de mogelijkheid om te parkeren op eigen terrein. De garage is uitgerust met een elektrische deur.
Al met al een verrassend ruime eengezinswoning, compleet uitgerust met alle gemakken en gelegen in een rustige, prettige woonwijk.
Bijzonderheden:
– Verrassend ruime eengezinswoning
– Energielabel B
– Moderne keuken met groot kookeiland (2023)
– Geheel vernieuwde badkamer (2025)
– Balkon van 13,5 m²
– Mogelijkheid om de woning te vergroten (vergunning verkregen voor een opbouw)
– Voorzien van kunststof kozijnen
– Voortuin met parkeren op eigen terrein en garage
– Diepe achtertuin met achterom
– Gelegen in een kindvriendelijke buurt, nabij het grote park met kinderboerderij
– Oplevering in overleg.
Wacht niet te lang, kom snel een kijkje nemen bij deze schitterende woning!
Kenmerken
- Status Beschikbaar
- Prijs € 539.500 k.k.
- Type woning Woonhuis
- Woonoppervlakte 118 m2
- Totaal aantal kamers 5
- Aantal slaapkamers 4
- Aantal badkamers 1
- Badkamer faciliteiten Toilet, wastafelmeubel, inloopdouche
- Inhoud 490 m3
- Oppervlakte gebouw gebonden buitenruimte 14 m2
- Perceel oppervlakte 180 m2
- Perceel 10.134 m2
- Bouwvorm Bestaande bouw
- Daktype Zadeldak
- Verdiepingen 3
- Eigendom type Volle eigendom, volle eigendom
- Bestemming huidig Woonruimte
- Huidig gebruik Woonruimte
- Bouwjaar 1977
- Energie label B
- Liggingen In woonwijk
- Onderhoudswaardering (binnen) Goed
- Aangeboden sinds 2025-10-17
- Aanvaarding In overleg
- Hoofdtuin locatie Noordwest
- Hoofdtuin oppervlakte 70 m2
- Hoofdtuin type Achtertuin
- Tuin Achtertuin, voortuin
- Quality garden Verzorgd
- Opslag type Aangebouwd steen
- Isolatie types Dubbel glas
- Boiler fuel type Gas
- Boiler property Eigendom
- Warm water types Cv ketel
- Voorzieningen Mechanische ventilatie, schuifpui, glasvezel kabel
- Garage Aangebouwd steen
- Parkeergelegenheden Openbaar parkeren, op eigen terrein
De woning in beeld




Plattegrond
Niet gevonden wat je zocht?
Laat ons je helpen en plaats nu gratis een vrijblijvende zoekopdracht.
