Omschrijving
LET OP! HET IS UITSLUITEND MOGELIJK OM VIA DE ADVERTENTIE OF VIA E-MAIL TE REAGEREN OP DEZE WONING!
PLEASE NOTE! IT IS ONLY POSSIBLE TO RESPOND TO THIS PROPERTY VIA THE ADVERTISEMENT OR BY E-MAIL!
**English below**
Ruim tweekamerappartement met prachtig uitzicht per direct beschikbaar!
De woning is gelegen op een fantastische locatie midden in het historische stadshart van Amsterdam. Het appartement bevindt zich in de directe nabijheid van De Dam, De grachtengordel en het Rembrandtplein. Winkels in overvloed met onder andere de Nieuwendijk, de Kalverstraat, winkelcentrum “De Kolk”, Magna Plaza en de Bijenkorf om de hoek. Tevens zijn er diverse gezellige horecagelegenheden. De bereikbaarheid met het openbaarvervoer is uitstekend met op loopafstand de tram en het Centraal Station.
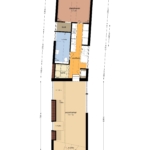
Indeling.
Begane grond:
Gemeenschappelijke entree met trapopgang.
Derde verdieping:
Binnenkomst in de keuken welke toegang biedt tot de woonkamer, slaapkamer, badkamer en loggia.
Bijzonderheden:
– Per direct beschikbaar;
– Huurperiode onbepaalde tijd, minimaal 12 maanden;
– Gestoffeerd;
– Gelegen in het hart van Amsterdam;
– Inkomeneis: 3 keer de huur als brutosalaris.
Huurprijs:
– Kale huurprijs: € 1.657,89
– Servicekosten: € 75,-
– Totale huurprijs: € 1.732,89
– Waarborgsom: € 3.315,78
Aan deze advertentie kunnen geen rechten worden ontleend.
****
Spacious two-room apartment with beautiful views available immediately!
The property is situated in a fantastic location in the heart of Amsterdam’s historic city center. The apartment is located in the immediate vicinity of Dam Square, the canal belt, and Rembrandtplein. There are plenty of shops, including Nieuwendijk, Kalverstraat, De Kolk shopping center, Magna Plaza, and De Bijenkorf around the corner. There are also several cozy restaurants and cafes. Accessibility by public transport is excellent, with the tram and Central Station within walking distance.
Layout.
Ground floor:
Communal entrance with staircase.
Third floor:
Entrance into the kitchen, which provides access to the living room, bedroom, bathroom, and loggia.
Details:
– Available immediately;
– Rental period indefinite, minimum 12 months;
– Unfurnished;
– Located in the heart of Amsterdam;
– Income requirement: 3 times the rent as gross salary.
Rental price:
– Basic rent: € 1657,89
– Service costs: € 75
– Total rent: € 1732,89
– Deposit: € 3315,78
No rights can be derived from this advertisement.
Kenmerken
- Status Beschikbaar
- Prijs € 1.657 p.m.
- Type woning Appartement
- Woonoppervlakte 65 m2
- Totaal aantal kamers 2
- Aantal slaapkamers 1
- Aantal badkamers 1
- Badkamer faciliteiten Toilet, douche, wastafel
- Inhoud 180 m3
- Bouwvorm Bestaande bouw
- Verdiepingen 1
- Type appartement Bovenwoning
- Woonlaag appartement 4
- Woonlaag vloer nummer 1
- Bestemming huidig Woonruimte
- Huidig gebruik Woonruimte
- Bouwjaar 1906
- Energie label C
- Onderhoudswaardering (binnen) Goed
- Aangeboden sinds 2026-01-29
- Aanvaarding Direct
- Tuin Geen tuin
- Garage Geen garage
De woning in beeld
Niet gevonden wat je zocht?
Laat ons je helpen en plaats nu gratis een vrijblijvende zoekopdracht.
