Omschrijving
Op zoek naar een licht vierkamerappartement van 66 m² met een zonnig balkon op een gunstige locatie? Dan is De Louterlaan 33 in Utrecht een buitenkans!
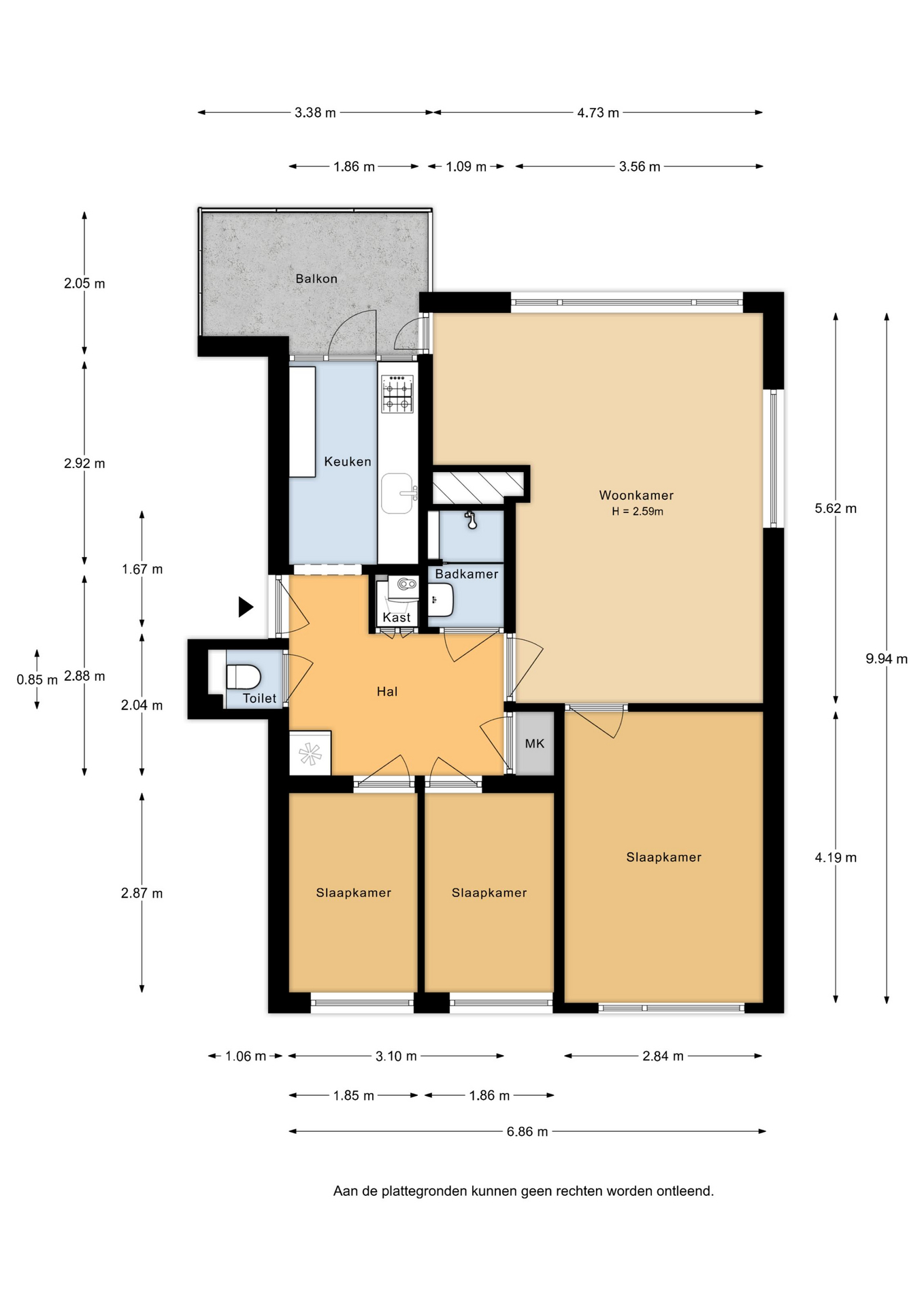
Dit hoekappartement op de derde verdieping beschikt over een lichte woon-/eetkamer, drie slaapkamers, een moderne keuken, een badkamer en een apart toilet. Aan de voorzijde vind je een fijn balkon waar je heerlijk buiten kunt zitten, en op de begane grond is er een praktische inpandige berging. Als extra pluspunt geniet je vanuit de woning van vrij uitzicht over de stad.
Locatie:
De ligging is ideaal in het levendige Transwijk. Binnen enkele minuten loop je naar Park Transwijk, winkelcentrum Nova, sportvoorzieningen, horeca, medische voorzieningen en meer. Trams en bussen naar Utrecht Centraal vertrekken om de hoek. Het bruisende centrum van Utrecht is binnen tien minuten per fiets bereikbaar en dankzij de gunstige ligging ten opzichte van de A2 en A12 bent u ook met de auto snel op weg.
Derde verdieping:
Alle ruimtes in de woning zijn direct bereikbaar vanuit de hal. Rechts van de voordeur bevindt zich een keurig afgewerkte toiletruimte. Verder tref je twee slaapkamers aan, beide met grote ramen die zorgen voor een fijne, natuurlijke lichtinval. Aan de overzijde van de slaapkamers ligt de badkamer, uitgerust met een douche en wastafel.
Naast de badkamer bevindt zich de moderne keuken, voorzien van diverse inbouwapparaten, waaronder een oven, vaatwasser, 4-pits fornuis, afzuigkap, koelkast en vriezer. Vanuit de hal loop je door naar de woonkamer. Hier is ruimte voor een gezellige eethoek en dankzij de grote ramen geniet je van een overvloed aan licht én een prachtig uitzicht op de skyline van Utrecht. Vanuit de woonkamer bereik je de derde en tevens grootste slaapkamer.
Buiten:
Het appartement beschikt over een royaal balkon op het zuidoosten, toegankelijk vanuit zowel de keuken als de woonkamer. Daarnaast is er op de begane grond nog een praktische berging aanwezig.
Kortom, Een fijn en licht appartement op een uitstekende locatie, met alle voorzieningen binnen handbereik!
Bijzonderheden:
– Woonoppervlakte: 66m²
– Externe bergruimte: 5m²
– Bouwjaar: 1961
– Energielabel C
– Ideale locatie
– 3 slaapkamers
– Ruim balkon (6m²) op zuid-oosten
– Prachtig uitzicht op de skyline van Utrecht
– VvE bijdrage €248,23 per maand
– In de koopovereenkomst zullen de volgende clausules opgenomen worden: Niet-zelfbewoningsclausule, ouderdomsclausule en asbestclausule;
– Oplevering: in overleg.
Nieuwsgierig geworden? Neem snel contact op voor het maken van een afspraak!
Kenmerken
- Status Beschikbaar
- Prijs € 315.000 k.k.
- Type woning Appartement
- Woonoppervlakte 66 m2
- Totaal aantal kamers 4
- Aantal slaapkamers 3
- Aantal badkamers 1
- Badkamer faciliteiten Douche, wastafel
- Inhoud 216 m3
- Oppervlakte gebouw gebonden buitenruimte 6 m2
- Perceel 433 m2
- Bouwvorm Bestaande bouw
- Daktype Plat dak
- Verdiepingen 1
- Type appartement Portiekflat
- Woonlaag appartement 3
- Woonlaag vloer nummer 4
- Eigendom type Volle eigendom
- Bestemming huidig Woonruimte
- Huidig gebruik Woonruimte
- Bouwjaar 1961
- Energie label C
- Liggingen Aan rustige weg, in woonwijk, vrij uitzicht
- Onderhoudswaardering (binnen) Goed
- Aangeboden sinds 2025-11-21
- Aanvaarding In overleg
- Tuin Geen tuin
- Opslag type Inpandig
- Opslag 5 m2
- Isolatie types Muurisolatie, dubbel glas
- Central heating boiler Ja
- Boiler fuel type Gas
- Boiler property Eigendom
- Warm water types Cv ketel
- Voorzieningen Natuurlijke ventilatie
- Garage Geen garage
- Parkeergelegenheden Openbaar parkeren, parkeervergunningen
- VVE contributie Ja
De woning in beeld
Plattegrond
Niet gevonden wat je zocht?
Laat ons je helpen en plaats nu gratis een vrijblijvende zoekopdracht.
