Omschrijving
Droom jij van een instapklare woning in een rustige, groene omgeving? Deze verzorgde tussenwoning in de kindvriendelijke wijk ’t Weer in De Meern biedt alles wat je zoekt: vrij uitzicht aan de voorzijde, vier ruime slaapkamers en een zonnige achtertuin met achterom. Op slechts een paar minuten lopen van het Maximapark en met winkels, sportfaciliteiten en scholen in de directe omgeving, is dit de ideale plek voor iedereen die houdt van ruimte, comfort en moderne gemakken.
De Meern is niet voor niets een van de meest gewilde woonplekken in de regio Utrecht. De wijk is ruim opgezet, rijk aan groen en speelvoorzieningen en bestaat voornamelijk uit laagbouw met gezinswoningen. Het oude dorpscentrum is volop in ontwikkeling en biedt alles voor de dagelijkse boodschappen. Daarnaast ben je in no time in het Leidsche Rijn Centrum of hartje Utrecht – met de auto, het openbaar vervoer of gewoon op de fiets.
Dankzij de gunstige ligging ten opzichte van de uitvalswegen (A2 en A12) en goede OV-verbindingen zijn ook andere steden uitstekend bereikbaar. Dit is dé kans om te wonen in een prachtige, complete gezinswoning op een toplocatie. Een fijne, rustige en kindvriendelijke plek waar je direct kunt intrekken en die klaar is voor de toekomst.
INDELING
Begane grond:
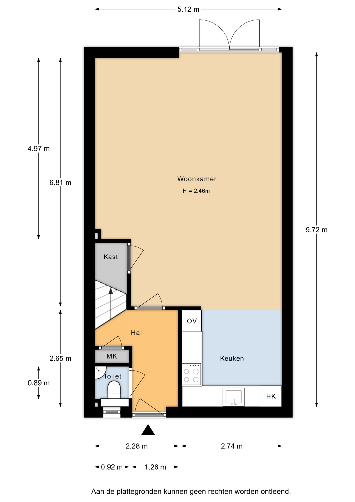
Via de entree met toilet, meterkast (volledig vernieuwd in 2025) en trapopgang naar de eerste verdieping stap je binnen in de lichte, uitgebouwde woonkamer. Dankzij de openslaande deuren naar de tuin en de PVC-vloer met comfortabele vloerverwarming is dit een heerlijke plek om te ontspannen. Aan de voorzijde bevindt zich de moderne hoekkeuken (2023) in gebroken wit, voorzien van een inductiekookplaat, afzuigkap, vaatwasser, koel-vriescombinatie en oven – een stijlvolle en praktische ruimte voor kookliefhebbers.
Eerste verdieping:
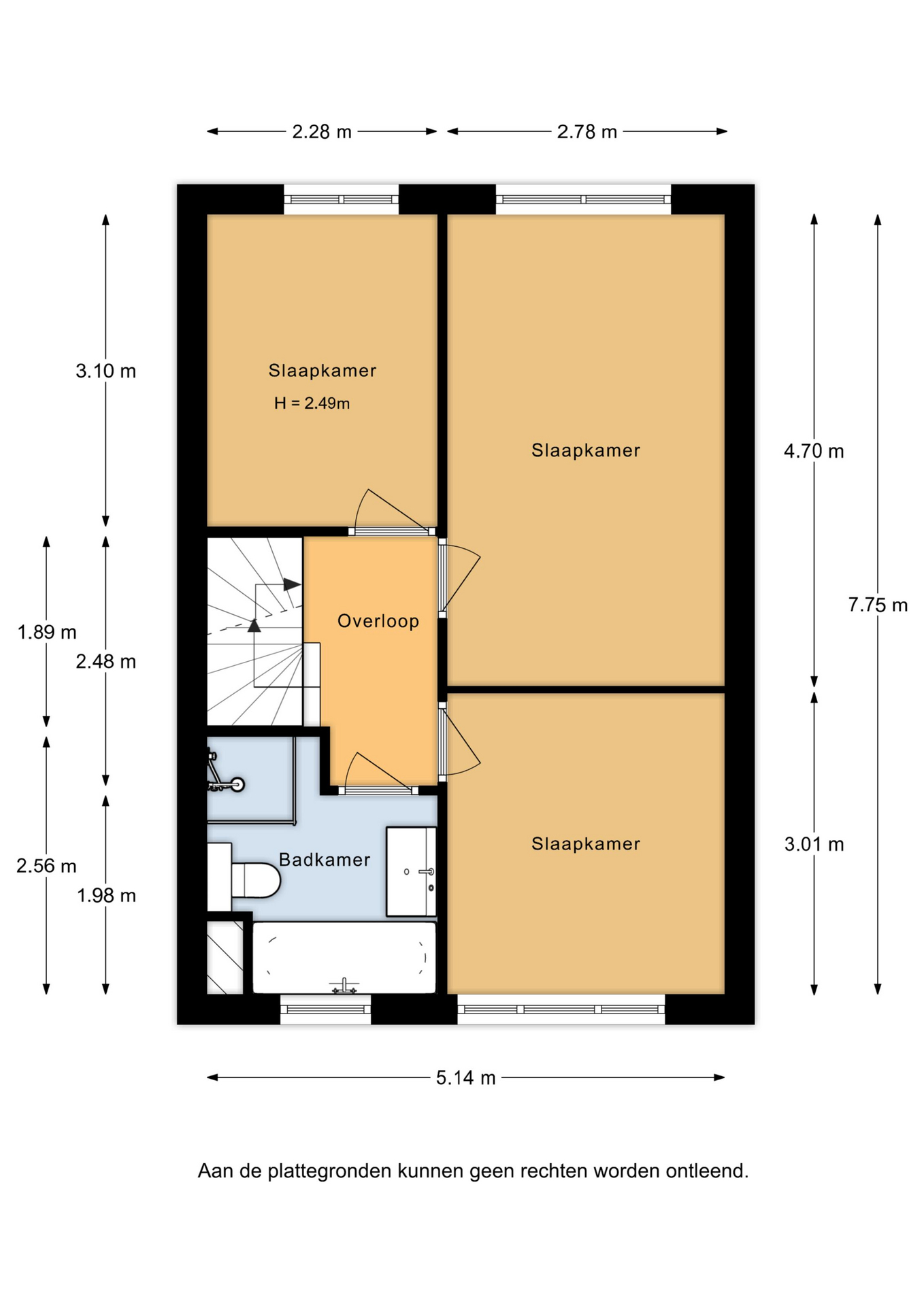
De ruime overloop geeft toegang tot drie royale slaapkamers, waarvan de twee slaapkamers aan de achterzijde zijn uitgerust met screens. De badkamer is in 2024 volledig vernieuwd en stijlvol afgewerkt met lichte betegeling. Hier vind je een ligbad, een inloopdouche met regendouche, een modern wastafelmeubel en een tweede toilet.
Tweede verdieping:
De tweede verdieping is één open, lichte ruimte met een groot dakraam en een dakkapel (geplaatst in 2024), waardoor deze verdieping een bijzonder ruimtelijk gevoel heeft. Hier vind je ook de aansluitingen voor de wasapparatuur en de cv-installatie. Dankzij de royale opzet is deze verdieping uitermate geschikt als master bedroom, werkkamer of hobbyruimte.
Tuin:
De zonnige, onderhoudsarme achtertuin op het zuiden is een heerlijke buitenruimte waar je volop kunt genieten. De tuin beschikt over een houten berging met elektra, zonnescherm aan de achtergevel en een handige achterom.
Bijzonderheden:
– De woning is voorzien van energielabel B en 6 zonnepanelen
– De woning heeft een woonoppervlakte van 116m2 en vier ruime slaapkamers
– Moderne keuken met inbouwapparatuur (2023)
– Moderne badkamer (2024)
– Alle ramen voorzien van horren
– Parkeerplaats op eigen terrein voor de deur
– Vrije ligging aan de voorzijde
– Achtertuin is op het zuiden gelegen en beschikt over een zonnescherm, handige berging en achterom
– Gelegen in een rustige, kindvriendelijke wijk
– Het Maximapark ligt om de hoek van de woning
– Aanvaarding in overleg
Klinkt dit als jouw toekomstige thuis? Maak snel een afspraak voor een bezichtiging en ontdek wat deze woning in De Meern jou te bieden heeft!
Kenmerken
- Status Beschikbaar
- Prijs € 550.000 k.k.
- Type woning Woonhuis
- Woonoppervlakte 116 m2
- Totaal aantal kamers 5
- Aantal slaapkamers 4
- Aantal badkamers 1
- Badkamer faciliteiten Ligbad, toilet, wastafelmeubel, inloopdouche
- Inhoud 403 m3
- Perceel oppervlakte 153 m2
- Perceel 3.646 m2
- Bouwvorm Bestaande bouw
- Daktype Dwarskap
- Verdiepingen 3
- Eigendom type Volle eigendom
- Bestemming huidig Woonruimte
- Huidig gebruik Woonruimte
- Bouwjaar 1993
- Energie label B
- Liggingen Aan water, aan rustige weg, in woonwijk
- Onderhoudswaardering (binnen) Goed
- Aangeboden sinds 2025-10-16
- Aanvaarding In overleg
- Hoofdtuin locatie Zuid
- Hoofdtuin oppervlakte 66 m2
- Hoofdtuin type Achtertuin
- Tuin oppervlakte 94 m2
- Tuin Achtertuin, voortuin
- Quality garden Normaal
- Opslag type Vrijstaand hout
- Opslag 5 m2
- Isolatie types Volledig geisoleerd
- Central heating boiler Ja
- Boiler construction year 2011
- Boiler fuel type Gas
- Boiler property Eigendom
- Warm water types Cv ketel, elektrische boiler eigendom
- Voorzieningen Mechanische ventilatie, dakraam, zonnepanelen
- Garage Geen garage
- Parkeergelegenheden Openbaar parkeren
De woning in beeld




Plattegrond
Niet gevonden wat je zocht?
Laat ons je helpen en plaats nu gratis een vrijblijvende zoekopdracht.
