Omschrijving
Ben je op zoek naar een sfeervolle woning met karakter, een heerlijke tuin én de binnenstad van Utrecht om de hoek? Dan is deze charmante benedenwoning uit de jaren ’30 precies wat je zoekt! De woning is volledig gerenoveerd en tot in de puntjes onderhouden, waardoor authentieke details prachtig samengaan met hedendaags wooncomfort.
Met een woonoppervlakte van ca. 65 m² geniet je hier van een lichte woonkamer met openslaande deuren naar de tuin, een moderne keuken en badkamer, een ruime slaapkamer en een karakteristieke erker die zorgt voor extra allure. De zonnige tuin met berging maakt het plaatje compleet – een ideale plek om te ontspannen of gezellig te borrelen.
Nieuwsgierig geworden? Plan snel een bezichtiging
Locatie:
De woning ligt in de geliefde Dichterswijk – een wijk waar stadse levendigheid en ontspannen wonen hand in hand gaan. Binnen enkele minuten fiets je naar Utrecht Centraal, station Vaartsche Rijn of het bruisende stadscentrum. Ook met de auto ben je uitstekend bereikbaar: via de nabijgelegen uitvalswegen A2, A12 en A27 rijd je zo de stad uit.
Voor de dagelijkse boodschappen hoef je niet ver: op loopafstand vind je onder meer een Albert Heijn en Plus supermarkt, evenals diverse speciaalzaken. Sport- en speelvoorzieningen liggen eveneens om de hoek. En ben je toe aan iets lekkers of gezelligs? Dan zit je hier helemaal goed. Trakteer jezelf op ambachtelijk ijs bij IJssalon Lorenzo, proef lokale kazen en Utrechtse streekproducten bij BijKees, of ontdek de vele horecazaken in de omgeving. Van de sfeervolle Veilinghavenkade en de gezellige Croeselaan tot de creatieve hotspots van Rotsoord en het altijd levendige Ledig Erf – er is altijd wel een fijne plek voor een koffie, lunch, borrel of avond uit.
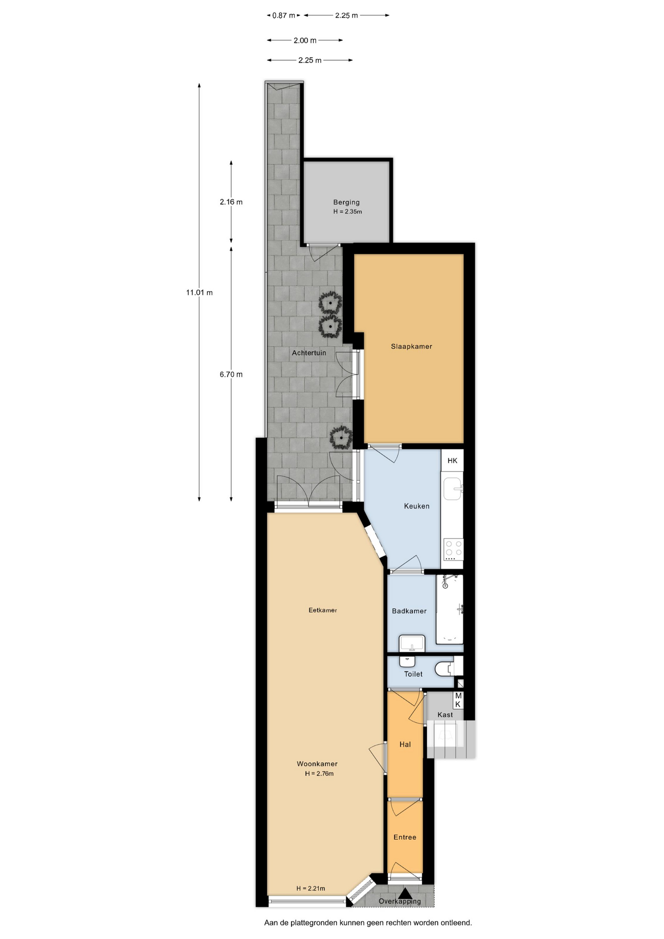
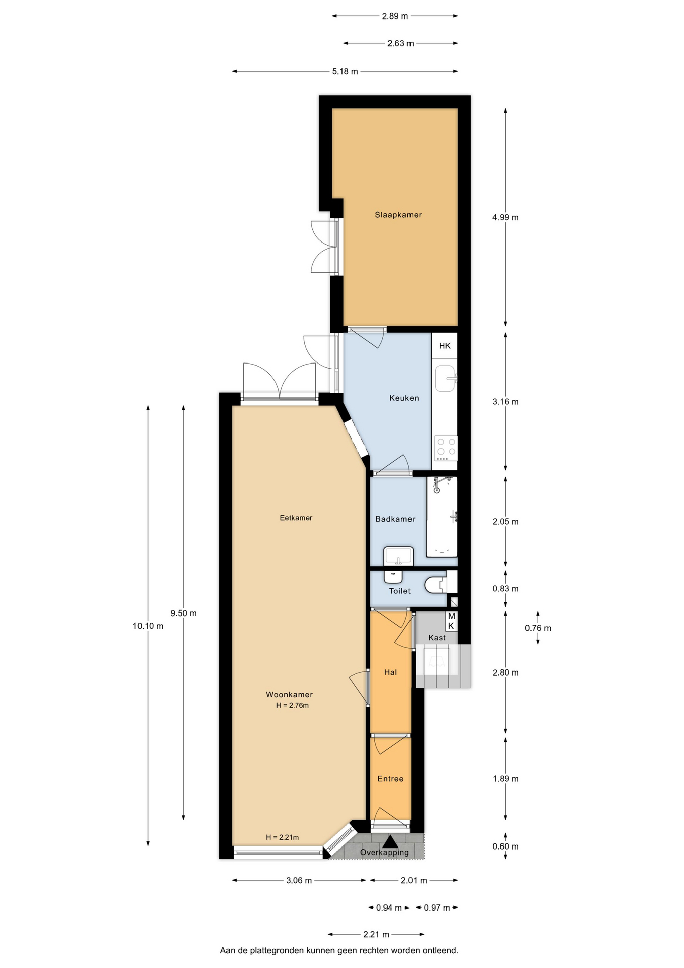
Indeling
Bij binnenkomst word je verwelkomd in de hal met vestibule. Naast de hal bevindt zich een handige trapkast met tevens de meterkast. Vanuit de hal heb je toegang tot de ruime woon- en eetkamer.
De lichte woonkamer ademt sfeer en comfort, met een stijlvolle laminaatvloer, strak gestucte wanden en plafonds, en een charmante erker aan de voorzijde die zorgt voor een warme uitstraling. Aan de achterzijde openen de dubbele tuindeuren naar het terras, waardoor je geniet van een zee aan daglicht en een fraai uitzicht op de tuin.
De moderne, half-open keuken sluit hier prachtig op aan en is voorzien van een modern keukenblok met greeploze kasten en lades. Alle gemakken zijn aanwezig: een gaskookplaat, afzuigkap, oven, koel-vriescombinatie en vaatwasser. Via de handige loopdeur bereik je ook vanuit de keuken de tuin.
De badkamer is stijlvol volledig betegeld en uitgerust met een ligbad en een fraai wastafelmeubel – een fijne plek om heerlijk te ontspannen.
De riante, lichte slaapkamer is bereikbaar vanuit de keuken en biedt voldoende ruimte voor een garderobekast. De tuin is gelegen op het noordwesten en beschikt over een grote stenen schuur die veel extra opbergruimte biedt.
Bijzonderheden:
– Instapklare benedenwoning van ca. 65m²;
– Fijne tuin met achterom en een stenen berging;
– Bouwjaar 1926;
– Energielabel G;
– VvE bijdrage per maand €50,- (VvE is niet actief) ;
– Dichtbij het bruisende centrum van Utrecht met alle voorzieningen in de buurt;
– Oplevering in overleg.
Kom langs en ervaar zelf de charme van deze fijne plek in de geliefde Dichterswijk!
Kenmerken
- Status Beschikbaar
- Prijs € 400.000 k.k.
- Type woning Appartement
- Woonoppervlakte 65 m2
- Totaal aantal kamers 2
- Aantal slaapkamers 1
- Aantal badkamers 1
- Badkamer faciliteiten Ligbad, wastafelmeubel
- Inhoud 229 m3
- Oppervlakte gebouw gebonden buitenruimte 1 m2
- Perceel 8.447 m2
- Bouwvorm Bestaande bouw
- Daktype Plat dak
- Verdiepingen 1
- Type appartement Benedenwoning
- Woonlaag appartement 1
- Woonlaag vloer nummer 1
- Eigendom type Volle eigendom
- Bestemming huidig Woonruimte
- Huidig gebruik Woonruimte
- Bouwjaar 1926
- Energie label G
- Liggingen In centrum, in woonwijk
- Onderhoudswaardering (binnen) Goed
- Aangeboden sinds 2025-09-30
- Aanvaarding In overleg
- Hoofdtuin locatie Zuidwest
- Hoofdtuin oppervlakte 18 m2
- Hoofdtuin type Achtertuin
- Tuin Achtertuin
- Quality garden Normaal
- Opslag type Aangebouwd steen
- Opslag 5 m2
- Isolatie types Vloerisolatie, gedeeltelijk dubbel glas
- Boiler property Eigendom
- Warm water types Cv ketel
- Voorzieningen Mechanische ventilatie
- Garage Geen garage
- Parkeergelegenheden Betaald parkeren, parkeervergunningen
- VVE contributie Ja
De woning in beeld




Plattegrond
Niet gevonden wat je zocht?
Laat ons je helpen en plaats nu gratis een vrijblijvende zoekopdracht.
