Omschrijving
Ben je op zoek naar ruimte, comfort én een gunstige ligging? Dan is dit lichte en goed onderhouden 3-kamerappartement met balkon, gelegen op de eerste verdieping van een verzorgd appartementencomplex in de rustige wijk Schuilenburg én voorzien van energielabel A, precies wat je zoekt.
Dankzij de praktische indeling, royale woonkamer en de overvloed aan daglicht voelt dit direct als thuiskomen. Binnen slechts 10 minuten fietsen sta je in het bruisende centrum van Amersfoort, terwijl je in 5 minuten de rust en natuur van het buitengebied bereikt.
Voorzieningen liggen letterlijk om de hoek: een supermarkt, bushalte en basisschool bevinden zich op slechts enkele seconden loopafstand. Bovendien zijn de A1 en A28 snel bereikbaar, waardoor dit een ideale locatie voor forenzen is.
Kortom: een heerlijk licht en comfortabel appartement op een rustige plek met alle gemakken van de stad binnen handbereik!
INDELING
Begane grond:
Bellentableau met brievenbussen, centrale hal met trappenhuis en lift, toegang tot de berging.
Eerste verdieping:
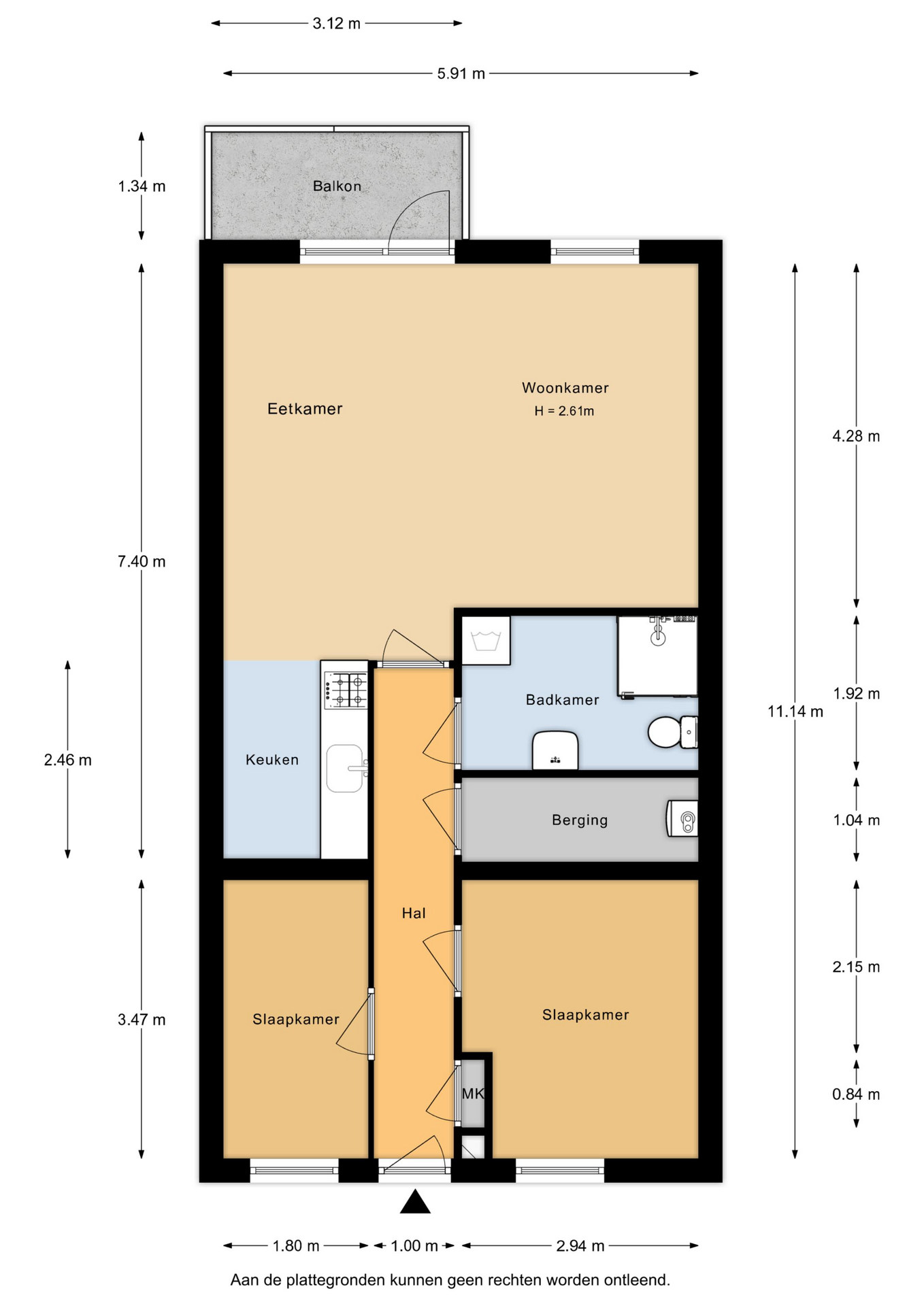
Via de centrale entree kom je in de hal die toegang biedt tot alle vertrekken met in het verlengde toegang tot de woonkamer – over de volle breedte van het appartement – met open keuken. Wat direct opvalt, is het vele daglicht, wat maakt dat de woonkamer ruimtelijk aanvoelt. Er is meer dan genoeg plek voor een royale zithoek en een eettafel. Bovendien biedt de woonkamer directe toegang tot het balkon.
De functionele keuken is uitgerust met een keukenblok, 4-pits gasfornuis, afzuigkap en voldoende opbergruimte. Er is extra ruimte beschikbaar voor een losse koelkast en andere apparatuur, waardoor deze keuken zowel praktisch als comfortabel is in gebruik.
Vanuit de hal heb je verder toegang tot de 2 slaapkamers, beide gelegen aan de rustige voorzijde van de woning.
De ruime en functionele badkamer beschikt over een douchecabine, toilet, wastafelmeubel en de aansluitpunt voor de wasmachine. Daarnaast is er een handige berging met de opstelplaats van de Cv-ketel, ideaal voor extra opslag. Vrijwel het gehele appartement is voorzien van een nette laminaatvloer.
Het balkon, gelegen op het oosten, biedt voldoende ruimte voor een gezellig zitje: de perfecte plek om in de ochtendzon van je koffie te genieten.
De wijk Schuilenburg en omgeving
Schuilenburg is een groene en veelzijdige wijk in Amersfoort die bekendstaat om de goede bereikbaarheid en prettige woonomgeving. Voor je dagelijkse boodschappen hoef je niet ver: de supermarkt ligt al op één minuut loopafstand en daarnaast fiets je in een paar minuten naar winkelcentrum Euterpeplein of Emiclaer. Binnen tien minuten ben je in de historische binnenstad voor winkels horeca en cultuur.
Sportliefhebbers kunnen terecht bij de diverse sportvoorzieningen in de buurt zoals zwembad de Amarena en natuur vind je volop in Park Schothorst of langs de Eem. Scholen, kinderopvang en openbaar vervoer zijn dichtbij waardoor de wijk ideaal is voor jong en oud. Dankzij de ligging vlak bij de A1 en A28 rijd je bovendien zo richting Utrecht Amsterdam of Zwolle. Hier woon je rustig en groen met de voordelen van de stad altijd dichtbij.
Bijzonderheden:
• Bouwjaar: 2004
• Energielabel A
• Goed ingedeeld met 2 slaapkamers en een ruime woonkamer
• Balkon met toegang vanuit woon-/ eetkamer
• Lift aanwezig
• Eigen berging op de begane grond
• Ideale ligging t.o.v. winkels, binnenstad en uitvalswegen
• Maandelijkse VvE bijdrage: € 163,20,-
• In de koopovereenkomst zal een niet-zelfbewoningsclausule worden opgenomen
• Oplevering: in overleg
Plan snel een bezichtiging en ontdek zelf de mogelijkheden van deze fijne woning.
Kenmerken
- Status Beschikbaar
- Prijs € 319.500 k.k.
- Type woning Appartement
- Woonoppervlakte 66 m2
- Totaal aantal kamers 3
- Aantal slaapkamers 2
- Aantal badkamers 1
- Badkamer faciliteiten Toilet, douche, wastafelmeubel, wasmachineaansluiting
- Inhoud 222 m3
- Oppervlakte gebouw gebonden buitenruimte 4 m2
- Perceel 6.682 m2
- Bouwvorm Bestaande bouw
- Daktype Plat dak
- Verdiepingen 1
- Type appartement Portiekflat
- Woonlaag appartement 2
- Woonlaag vloer nummer 1
- Eigendom type Volle eigendom
- Bestemming huidig Woonruimte
- Huidig gebruik Woonruimte
- Bouwjaar 2004
- Energie label A
- Liggingen In woonwijk, vrij uitzicht
- Onderhoudswaardering (binnen) Goed
- Aangeboden sinds 2025-10-09
- Aanvaarding In overleg
- Tuin Geen tuin
- Opslag 4 m2
- Isolatie types Dubbel glas, volledig geisoleerd
- Boiler property Eigendom
- Warm water types Cv ketel
- Voorzieningen Mechanische ventilatie, tv kabel, lift, glasvezel kabel
- Garage Geen garage
- Parkeergelegenheden Openbaar parkeren
- VVE contributie Ja
De woning in beeld




Plattegrond
Niet gevonden wat je zocht?
Laat ons je helpen en plaats nu gratis een vrijblijvende zoekopdracht.
