Description
* English below *
Direct een bezichtiging inplannen? Dat kan 24/7 via onze eigen website.
Ruime, duurzame en instapklare twee-onder-een-kapwoning met eigen oprit, garage en vijf slaapkamers! Gemakkelijk aan te passen naar zes slaapkamers!
Ben je op zoek naar een ruime gezinswoning waar comfort, duurzaamheid en een fijne woonomgeving samenkomen? Dan is deze uitstekend onderhouden twee-onder-een-kapwoning precies wat je zoekt. Met een woonoppervlakte van circa 179 m², een perceel van 269m², een eigen oprit, garage en maar liefst vijf slaapkamers, biedt deze woning volop ruimte voor het hele gezin.
Daarnaast is de woning helemaal klaar voor de toekomst. Dankzij 22 zonnepanelen, een warmtepomp, zonneboiler, HR+++ glas en energielabel A+++ woon je hier energiezuinig en comfortabel.
De ligging is bovendien ideaal. Een basisschool ligt op loopafstand en ook winkels, sportfaciliteiten en openbaar vervoer zijn dichtbij. Met directe verbindingen naar de A2 en A12 ben je snel onderweg en het stadscentrum van Utrecht bereik je eenvoudig met de fiets of OV.
INDELING
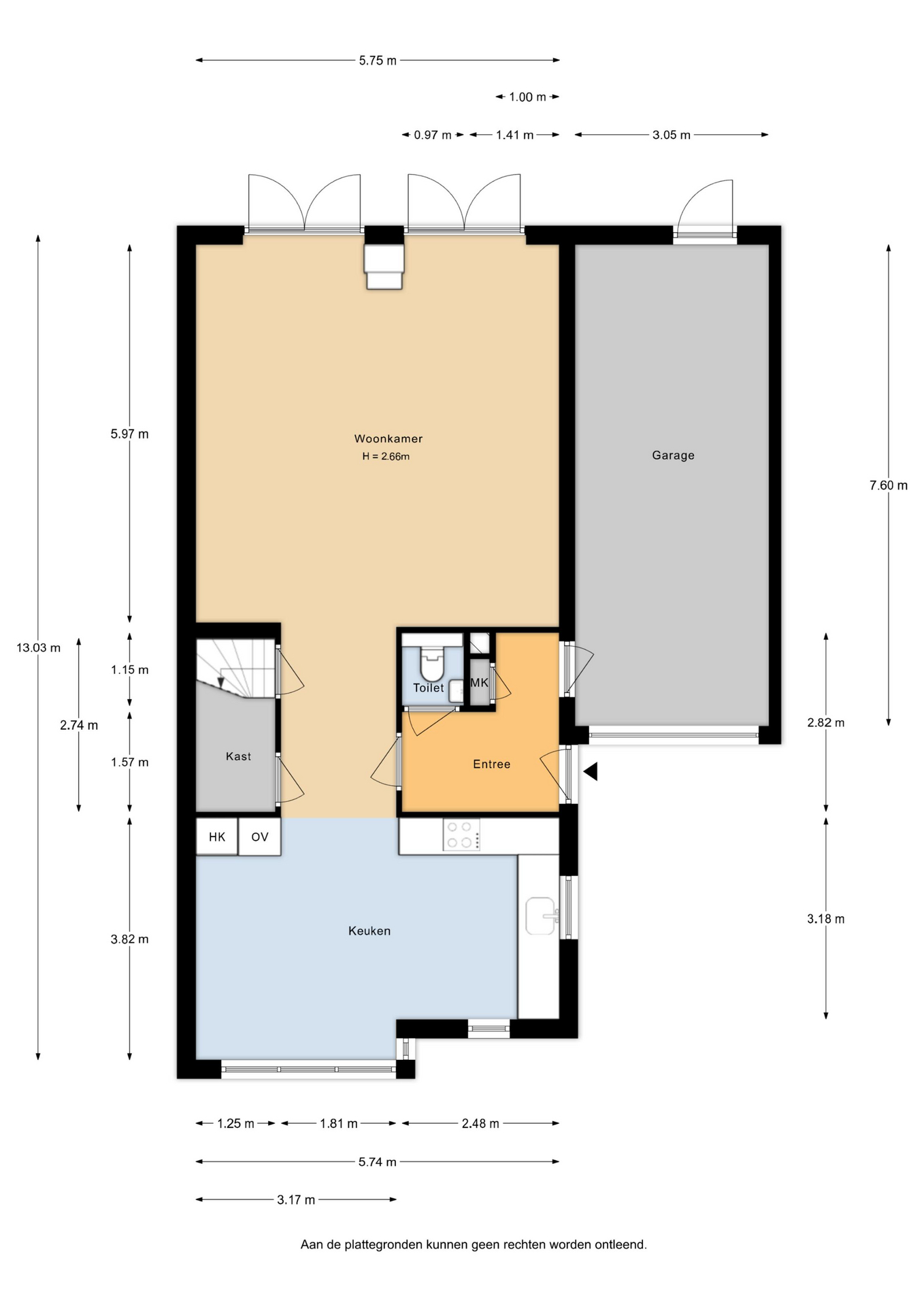
Begane grond:
Via de entree kom je in de hal met meterkast en een moderne toiletruimte voorzien van een hangend toilet en fonteintje. Vanuit hier heb je toegang tot de woonkamer en de ruime garage van circa 23 m².
De tuingerichte woonkamer is heerlijk licht en voorzien van dubbele openslaande deuren naar de achtertuin. De stijlvolle houten visgraatvloer met vloerverwarming geeft de ruimte een warme en luxe uitstraling. Daarnaast zorgt de sfeervolle gaskachel voor extra gezelligheid tijdens de koudere maanden.
Aan de voorzijde van de woning bevindt zich de ruime open keuken met plek voor de eethoek. De keuken is opgesteld in een praktische hoekopstelling en voorzien van diverse inbouwapparatuur, waaronder een 5-pits inductiekookplaat, vaatwasser en Quooker. Daarnaast is er een apparatenwand met koel-vriescombinatie, combimagnetron en oven. Dankzij de vele lades en kasten is er volop bergruimte aanwezig. Extra opbergruimte vind je in de trapkast.
Eerste verdieping:
Vanaf de overloop heb je toegang tot drie slaapkamers, de luxe badkamer en het separate toilet. De gehele verdieping is uitgevoerd met een houten parket vloer. De royale master bedroom aan de achterzijde beschikt over een praktische walk-in closet. De overige twee slaapkamers zijn eveneens ruim en geschikt als slaap-, werk- of hobbykamer.
De luxe, volledig betegelde badkamer is ingericht met een ligbad, royale inloopdouche en een stijlvol massief eiken wastafelmeubel met dubbele wastafel. Het aanwezige raam zorgt voor prettig daglicht en natuurlijke ventilatie. Voor extra opbergruimte zijn er twee kasten aanwezig. Op deze verdieping bevindt zich ook een separate toiletruimte met hangend toilet en fonteintje.
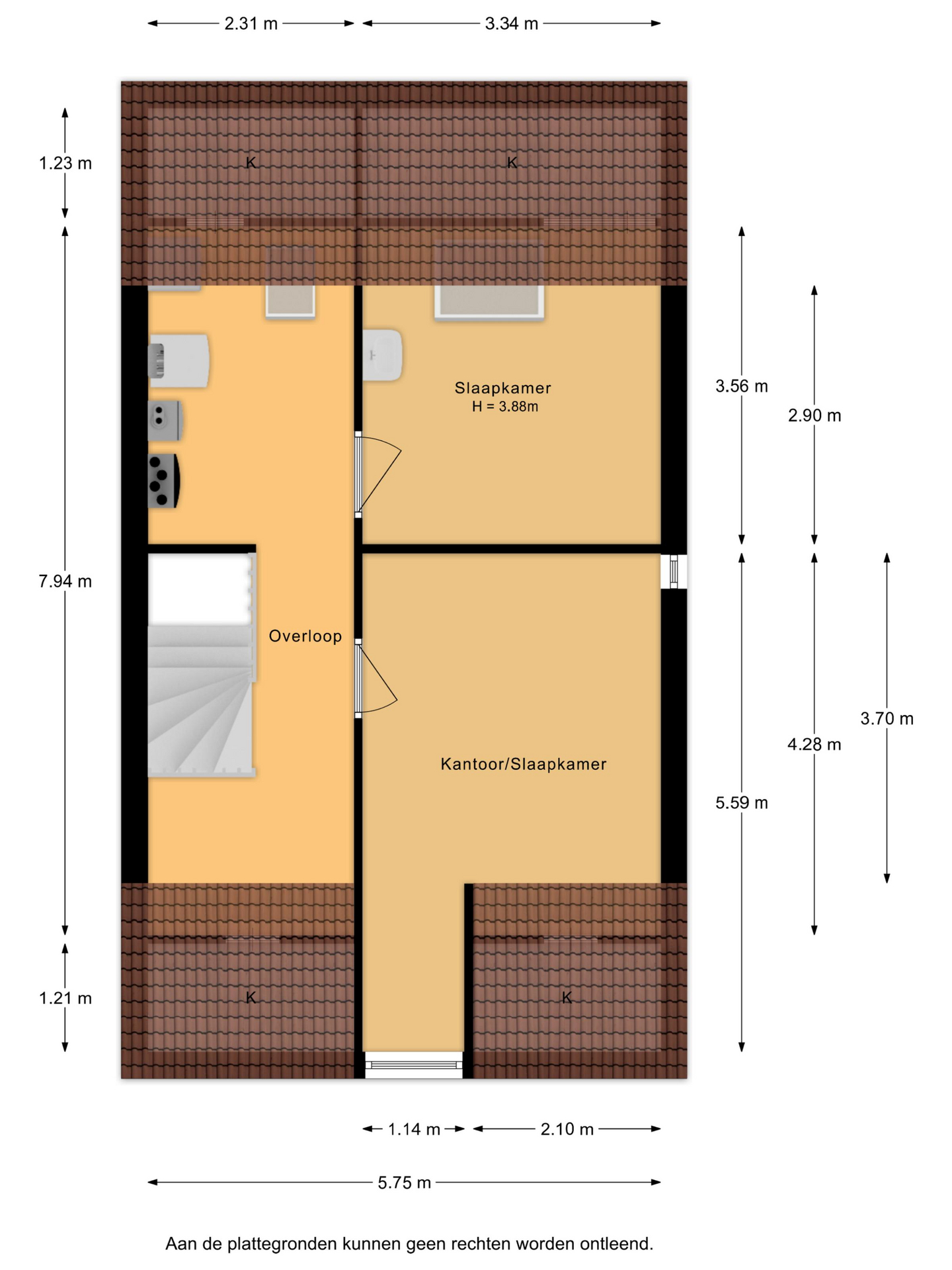
Tweede verdieping:
Via de vaste trap bereik je de tweede verdieping. Op de overloop bevinden zich knieschotten voor extra bergruimte en een dakraam dat zorgt voor natuurlijk licht. Hier zijn ook de cv-installatie, zonneboiler en de aansluiting voor de wasmachine opgesteld.
Op deze verdieping bevinden zich nog twee extra slaapkamers. Eén kamer beschikt over een dakraam en wastafel. De andere kamer, momenteel ingericht als kantoor, is voorzien van een dakkapel waardoor hier een prettige en ruime werk- of slaapkamer is ontstaan.
Tuin:
Aan de voorzijde van de woning ligt een verzorgde voortuin met eigen oprit voor twee auto’s.
De achtertuin is gelegen op het westen, waardoor je hier heerlijk kunt genieten van de middag- en avondzon. De tuin is verzorgd aangelegd met twee terrassen, sierbestrating, groene borders en een gazon.
Daarnaast is de tuin voorzien van een achterom en directe toegang tot de garage. De garage biedt volop ruimte voor het stallen van fietsen en het opbergen van tuinmeubilair en gereedschap.
Bijzonderheden:
• Moderne twee-onder-een-kapwoning (bouwjaar 2014)
• Woonoppervlakte ca. 179 m²
• Perceeloppervlakte 269 m² eigen grond
• Energielabel A+++
• Voorzien van warmtepomp, cv-installatie, zonneboiler en airconditioning
• Sfeervolle gaskachel in de woonkamer
• 22 zonnepanelen (eigendom)
• Volledig geïsoleerd en zeer energiezuinig
• Vloerverwarming op de begane grond
• Vijf ruime slaapkamers (gemakkelijk uit te breiden naar zes slaapkamers)
• Eigen oprit met parkeergelegenheid voor twee auto’s
• Ruime garage (volledig geïsoleerd)
• Gelegen in een kindvriendelijke buurt nabij voorzieningen
• Oplevering in overleg
Nieuwsgierig geworden? Deze ruime en duurzame gezinswoning laten wij je graag van binnen én buiten zien. Neem gerust contact op voor een bezichtiging en ervaar zelf de ruimte en het wooncomfort!
****
Schedule a viewing directly? You can do so 24/7 via our own website.
Spacious, sustainable and move-in-ready semi-detached house with private driveway, garage and five bedrooms! Easily adaptable to six bedrooms.
Are you looking for a spacious family home where comfort, sustainability and a pleasant living environment come together? Then this exceptionally well-maintained semi-detached house is exactly what you are looking for. With a living area of approximately 179 m², a plot of 269 m², a private driveway, garage and no fewer than five bedrooms, this property offers plenty of space for the entire family.
In addition, the house is fully prepared for the future. Thanks to 22 solar panels, a heat pump, solar boiler, HR+++ glazing, and an A+++ energy label, you will live here energy-efficiently and comfortably.
The location is also ideal. A primary school is within walking distance, and shops, sports facilities and public transport are nearby. With direct connections to the A2 and A12 motorways, you can travel quickly, and the city centre of Utrecht is easily accessible by bike or public transport.
LAYOUT
Ground floor
Through the entrance you arrive in the hallway with the meter cupboard and a modern toilet room equipped with a wall-mounted toilet and washbasin. From here you have access to the living room and the spacious garage of approximately 23 m².
The garden-facing living room is wonderfully bright and features double French doors opening to the backyard. The stylish wooden herringbone floor with underfloor heating gives the space a warm and luxurious feel. The cozy gas fireplace adds extra atmosphere during the colder months.
At the front of the house is the spacious open-plan kitchen with room for a dining area. The kitchen is arranged in a practical corner layout and equipped with various built-in appliances, including a 5-burner induction cooktop, dishwasher and Quooker tap. There is also an appliance wall with a fridge-freezer combination, combi microwave and oven. Thanks to the many drawers and cabinets there is plenty of storage space. Additional storage can be found in the understairs cupboard.
First floor
From the landing you have access to three bedrooms, the luxury bathroom, and a separate toilet. The entire floor is finished with a wooden parquet floor.
The spacious master bedroom at the rear features a practical walk-in closet. The other two bedrooms are also generously sized and suitable as bedrooms, home offices, or hobby rooms.
The luxurious, fully tiled bathroom includes a bathtub, spacious walk-in shower, and a stylish solid oak double vanity unit with two sinks. The window provides pleasant natural daylight and ventilation. Two cabinets offer additional storage. This floor also has a separate toilet room with a wall-mounted toilet and washbasin.
Second floor
The second floor is accessible via a fixed staircase. On the landing you will find knee-wall storage spaces and a roof window that provides natural light. The central heating installation, solar boiler, and washing machine connection are also located here.
This floor features two additional bedrooms. One room has a roof window and washbasin. The other room, currently used as an office, is fitted with a dormer window, creating a pleasant and spacious workspace or bedroom.
Garden
At the front of the house there is a well-maintained front garden with a private driveway for two cars.
The back garden is west-facing, allowing you to enjoy the afternoon and evening sun. The garden is beautifully landscaped with two terraces, decorative paving, green borders and a lawn.
The garden also has a rear entrance and direct access to the garage, which provides plenty of space for storing bicycles, garden furniture and tools.
Key features
Modern semi-detached house (built in 2014)
Living area approx. 179 m²
Plot size 269 m² freehold
Energy label A+++
Equipped with heat pump, central heating system, solar boiler and air conditioning
Atmospheric gas fireplace in the living room
22 solar panels (owned)
Fully insulated and highly energy-efficient
Underfloor heating on the ground floor
Five spacious bedrooms (easily expandable to six)
Private driveway with parking for two cars
Large fully insulated garage
Located in a family-friendly neighbourhood close to amenities
Transfer date in consultation
Curious to see more?
We would be happy to show you this spacious and sustainable family home both inside and out. Feel free to contact us to schedule a viewing and experience the space and living comfort for yourself!
Features
- Status Beschikbaar
- Price € 1.029.000 k.k.
- Type of house Residential house
- Livings space 179 m2
- Total number of rooms 6
- Number of bedrooms 5
- Number of bathrooms 1
- Bathroom facilities Ligbad, wastafelmeubel, inloopdouche
- Volume 697 m3
- Plot area 269 m2
- Construction type Existing building
- Roof type Gable roof
- Floors 3
- Property type Freehold
- Current destination Living space
- Current use Living space
- Construction year 2014
- Energy label A+++
- Situation Aan rustige weg, in woonwijk, vrij uitzicht
- Quality home Good
- Offered since 2026-03-17
- Acceptance In consultation
- Main garden location West
- Main garden area 92 m2
- Main garden type Back garden
- Garden type Back garden, front garden
- Quality garden Well-maintained
- Insulation type Fully insulated
- Warm water type Cv ketel, zonneboiler
- Facilities Mechanische ventilatie, buitenzonwering, airconditioning, dakraam, glasvezel kabel, zonnepanelen
- Garage type Attached stone
- Parking facilities On-site
The property in view
Plattegrond
Not found what you were looking for?
Let us help you and place a free, non-binding search order now.
