Description
Deze woning neemt deel aan de NVM Open Huizen Dag op 5 april 2025.
Prachtige kans om uniek te wonen!
Ontdek de allure van stoer en ruim wonen in de voormalige Gazeusefabriek Rozema, direct aan de Coolhaven. Deze unieke woon/werkloft op de begane grond verwelkomt je met een New Yorks gevoel en een royaal oppervlak van maar liefst 356 m2.
De loft ademt ruimte en licht, met grote kamers waaronder een uitnodigende zitkamer met een open haard en een open keuken, een bibliotheek, 3 slaapkamers, 2 badkamers en een eigen ‘buitenruimte’. Geniet van de indrukwekkende hoge plafonds van meer dan 4,5 meter en het vrije uitzicht op het water dat deze woning karakter geeft. Dankzij de grote dakramen en solartubes wordt het geheel overspoeld met natuurlijk licht, waardoor deze loft eindeloze mogelijkheden biedt.
Delfshaven wordt gevormd door de buurten Historisch Delfshaven en het Coolhaveneiland. Hier komt het rijke verleden van een pittoresk stukje stad samen met de creatieve dynamiek van hedendaagse stadsontwikkeling op het Coolhaveneiland.
In Historisch Delfshaven is een ruime keus aan galeries en gezellige restaurants en het is heerlijk vertoeven in het leuke haventje van Delfshaven.
Coolhaveneiland is een gebied in ontwikkeling. Thans heb je in de buurt alle stedelijke voorzieningen, basisscholen en kinderdagverblijven. De komende jaren zijn er tal van ontwikkelingen die de buurt nog aantrekkelijker zullen maken. Zeer gunstige ligging ten opzichte van de binnenstad, de uitvalswegen en het openbaar vervoer (metrostation Coolhaven op 1 minuut lopen). Om de hoek van één van de leukste cafe restaurants van Rotterdam: De Machinist en annex de Viskantine aan de Cool. Diverse musea (o.a. Boijmans, Kunsthal), de Euromast en het park zijn allen op loopafstand.
Indeling:
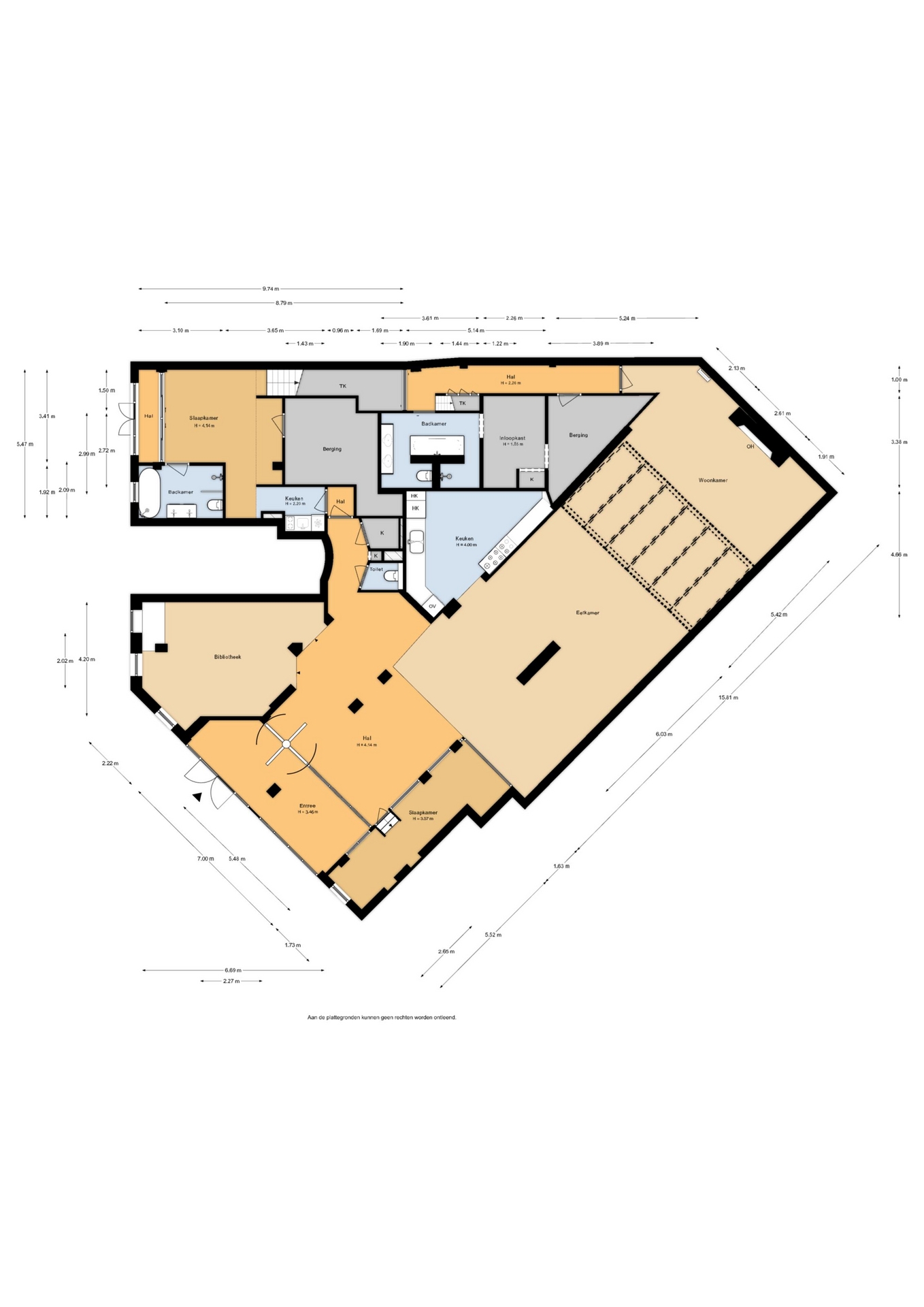
De loft beschikt over 3 ingangen, elk met zijn eigen charme. Stap binnen via de hoofdentree en word verwelkomd door een royale zitkamer, perfect voor ontspanning bij de open haard. De aangrenzende open keuken nodigt uit tot gezellige gesprekken terwijl je kookt. Een gang leidt naar een slaapkamer, badkamer en een ruime entresol.
Een trap leidt naar een verhoogde slaap-/werkkamer en aan de voorzijde vind je een grote bibliotheek cq werkruimte.
De loft is voorzien van een stenen vloer met vloerverwarming in de zitkamer, keuken, hal en werkruimte.
Studio:
Een aparte hal biedt toegang tot een studio met eigen voorzieningen, zoals een zitkamer, pantry en luxe badkamer. Deze studio heeft een eigen entree en wordt momenteel gebruikt als riante master bedroom.
Bijzonderheden:
– Eigen grond
– Woonoppervlakte van 359 m2
– Actieve Vereniging van Eigenaren, maandelijkse bijdrage € 608,00
– Verwarming en warm water via CV-combiketel (2020) en separate boiler (2018)
– 2 Meterkasten met in totaal 18 groepen + aardlekschakelaar(s)
– Voorzien van isolerende beglazing
– Apart te gebruiken studio
– Voormalige huisnummers 44, 50 en 52 zijn samengevoegd
– Grotendeels voorzien van vloerverwarming
– Lichtstraat
– Onder architectuur gecreëerde inpandige buitenruimte
– Gasgestookte open haard
– De woning wordt tevens te huur aangeboden onder de leegstandwet.
Features
- Status Beschikbaar
- Price € 995.000 k.k.
- Type of house Appartment
- Livings space 359 m2
- Total number of rooms 5
- Number of bedrooms 4
- Volume 1.612 m3
- Plot 4.739 m2
- Construction type Existing building
- Floors 1
- Appartment type Duplex ground floor apartment
- Appartment level 1
- Apartment floor number 1
- Construction year 1949
- Energy label D
- Situation By the waterway
- Quality home Reasonable
- Offered since 2025-10-24
- Acceptance In consultation
- Garden type No garden
- Shed / storage type Internal
- Insulation type Mostly double glazing, low-E glass
- Central heating boiler Yes
- Boiler construction year 2020
- Warm water type Central heating boiler
- Garage type No garage
- Parking facilities Paid parking
- VVE periodic contribution Yes
The property in view
Plattegrond
Not found what you were looking for?
Let us help you and place a free, non-binding search order now.
