Omschrijving
Een sfeervolle en ruime eengezinswoning (5 kamers, 96m2) met groene, zonnige tuin op het zuidwesten. Gelegen in een gezellig buurtje in de karaktervolle en kindvriendelijke wijk Zuilen.
In de sfeervolle buurt Elinkwijk in het Utrechtse Zuilen ligt deze tussenwoning met woon-/eetkamer, een gezellige open keuken en openslaande deuren naar de fijne tuin op het zuidwesten, vier comfortabele slaapkamers en een moderne badkamer met ligbad.
In 2020 is de woning bovendien uitgebreid met een opbouw, waardoor er een volwaardige extra verdieping is ontstaan met een royale slaapkamer en de moderne badkamer. Daarnaast is de woning in 2024 volledig geïsoleerd, voorzien van HR++ glas en maar liefst 6 zonnepanelen, wat resulteert in een gunstig energielabel A.
De ligging van de woning is geweldig; op loopafstand vind je aan de ene kant rivier de Vecht waar je heerlijk langs het water in het groen kunt wandelen, aan de andere kant het Julianapark. Het vlakbij gelegen ‘Werkspoorkwartier’ met een combinatie van populaire culturele- en horecagelegenheden zoals Warmoes, De Nijverheid en het Werkspoorcafé maakt dat de wijk in de voorbije jaren aan levendigheid en dynamiek heeft gewonnen.
Voor de dagelijkse boodschappen kan je terecht bij winkelcentrum Rokade, de Amsterdamsestraatweg of fiets in slechts 10 minuten naar het centrum van Utrecht. Met ijssalon Roma, iets verderop in de straat, is het lekkerste ijsje altijd in de buurt en voor een kop koffie of lunch kan je om de hoek terecht bij Lunchroom Parkzicht of The Colour Kitchen.
Voor natuurliefhebbers zijn de Maarsseveense Plassen, Natuurgebied Zuilen en het Gagelbos vlakbij gelegen. Fietsen en hardlopen langs de Vecht zijn een geliefde bezigheid voor bewoners in deze wijk. De uitvalswegen zijn goed bereikbaar en de verbinding met het openbaar vervoer is uitstekend: Station Zuilen, met een directe verbinding naar Amsterdam, ligt op slechts 5 minuten fietsen. Sportclubs en scholen zijn op korte afstand te bereiken. Bovendien kan parkeren direct voor de deur, thans gratis én zonder vergunning.
Kortom, deze fijne woning mag je niet missen!
Indeling
Begane grond
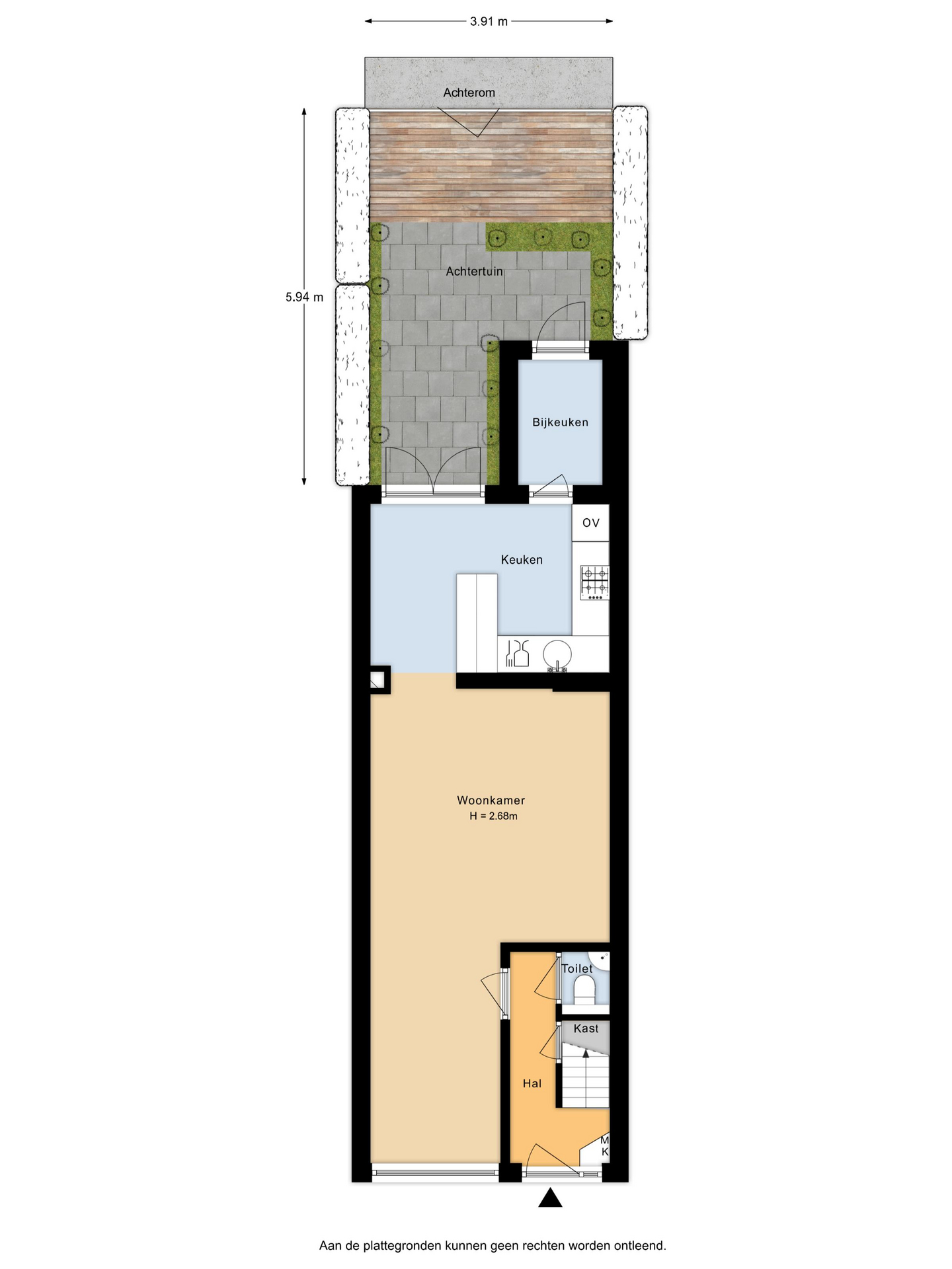
Je komt binnen in de hal met toilet, meterkast en trapopgang. Vanuit hier stap je de woonkamer binnen, waar aan de voorzijde plek is voor een eetgedeelte en het zitgedeelte centraal gelegen is. De open keuken ligt aan de achterzijde en grenst direct aan de tuin. Deze is praktisch ingedeeld en voorzien van een bar en diverse inbouwapparatuur, waaronder een nieuwe vaatwasser (2025), oven (2024), gaskookplaat, koelkast en combi-oven. Via de openslaande deuren loop je zo de tuin in. Daarnaast is er toegang tot de bijkeuken, ideaal voor extra voorraad of als praktische opbergruimte.
Eerste verdieping
De overloop geeft toegang tot drie lichte slaapkamers. De slaapkamer aan de voorzijde beschikt over een vaste kast en biedt een prettige doorkijk over het plein. Aan de achterzijde liggen nog twee slaapkamers, beide met een groot raam waardoor de kamers heerlijk licht zijn. Dankzij de veelzijdigheid kun je de ruimtes naar wens inrichten als slaap-, werk- of hobbykamer. Ook is er een handige trapkast aanwezig.
Tweede verdieping
Deze verdieping is in 2020 gerealiseerd. Op de tweede verdieping vind je de overloop met dakraam, de opstelplaats voor het witgoed en de cv-ketel. Aan de achterzijde ligt een ruime en lichte slaapkamer, die zich uitstekend leent als masterbedroom, logeerkamer, thuiskantoor of hobbyruimte. De badkamer is in 2020 volledig vernieuwd en uitgevoerd in een moderne stijl. Hier geniet je van een ligbad, inloopdouche, wastafelmeubel, toilet en een dakraam voor natuurlijk licht en ventilatie. Ook is er op de overloop extra opbergruimte beschikbaar achter het schot.
Tuin
De achtertuin is gelegen op het zonnige zuidwesten, waardoor je hier van ’s ochtends tot in de avond heerlijk van de zon kunt genieten. De tuin is aangelegd met groene heggen en beplanting en er is een terras waar volop ruimte is voor een gezellig zitje. Dankzij de praktische achterom is de tuin bovendien gemakkelijk bereikbaar.
Bijzonderheden
• Sfeervolle jaren ’30-woning
• Bouwjaar 1931, opbouw gerealiseerd in 2020
• Energielabel A
• Voorzien van 6 zonnepanelen
• Maar liefst vier slaapkamers
• Achtertuin op het zuidwesten
• CV-ketel huur- en onderhoudscontract (Feenstra) ca. €39,65
• De voor- en achtergevel zijn gecontroleerd en gerenoveerd in 2025
• Gunstige ligging ten opzichte van de binnenstad en voorzieningen
• Gelegen in een kindvriendelijke wijk met scholen, speeltuinen en parken dichtbij
• Oplevering in overleg
Kom langs en ervaar zelf de charme van deze fijne plek in de geliefde wijk Zuilen!
Kenmerken
- Status Verkocht
- Prijs € 525.000 k.k.
- Type woning Woonhuis
- Woonoppervlakte 96 m2
- Totaal aantal kamers 5
- Aantal slaapkamers 4
- Aantal badkamers 1
- Badkamer faciliteiten Ligbad, toilet, wastafelmeubel, inloopdouche
- Inhoud 330 m3
- Perceel oppervlakte 72 m2
- Bouwvorm Bestaande bouw
- Daktype Samengesteld dak
- Verdiepingen 3
- Eigendom type Volle eigendom
- Bestemming huidig Woonruimte
- Huidig gebruik Woonruimte
- Bouwjaar 1931
- Energie label A
- Liggingen Aan rustige weg, in woonwijk
- Onderhoudswaardering (binnen) Goed
- Aangeboden sinds 2025-12-12
- Aanvaarding In overleg
- Hoofdtuin locatie Zuidwest
- Hoofdtuin oppervlakte 23 m2
- Hoofdtuin type Achtertuin
- Tuin Achtertuin
- Quality garden Normaal
- Opslag type Aangebouwd steen
- Isolatie types Volledig geisoleerd
- Central heating boiler Ja
- CV ketel bouwjaar 2023
- CV ketel brandstof Gas
- CV ketel eigendom Huur
- Warm water types Cv ketel
- Voorzieningen Tv kabel, zonnepanelen, natuurlijke ventilatie
- Garage Geen garage
- Parkeergelegenheden Openbaar parkeren
De woning in beeld
Plattegrond
Niet gevonden wat je zocht?
Laat ons je helpen en plaats nu gratis een vrijblijvende zoekopdracht.
